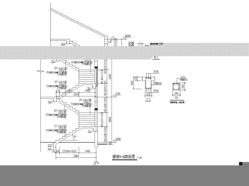
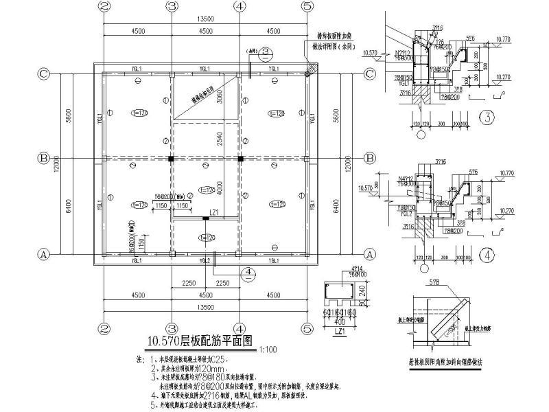
3层框架结构别墅套型优雅别致型
- 发布时间:2021-12-05
- 评论次数:0
- 浏览次数:0
- 文件大小:3.07 MB
- 收藏次数:0
-
文件名称:
附件-995876559685598008877.zip
别墅框架结构下载
- 简约优雅新中式别墅庭院景观方案
- 西班牙风格节能型2层别墅建筑施工套CAD图纸
- B型山体别墅建筑CAD图纸
- A型山体别墅建筑CAD图纸
- 2层花园会所建筑施工套CAD图纸(节能型)(框架结构)
- 2019保利Y型住宅标准及选配8套
- 中小套型住宅建筑设计竞赛户型集萃
- 山地别墅紧凑型联排150平户型图纸设计2020
- 一个别致的别墅建筑CAD图纸
- 99套s型z型半圆形弧形花架廊亭施工方案图纸
- 灌区泄水闸及进水闸初步设计图纸,干渠泄水闸套型图和支渠进水闸套型图
- 惠东2层D型独立别墅全套施工图纸(框架结构)
- 3层框架结构花园式别墅建筑施工CAD图纸(F型)
- 欧式2层别墅(H3型)建筑CAD图纸(框架结构)
- 3层框架结构别墅(A4型)全套建筑图纸.dwg
- 两层框架结构高档别墅(D型)全套建筑图纸.dwg
- 别墅型4层公馆建筑CAD施工图纸
- 3层别墅(E1型)建筑CAD图纸
- 3层别墅(D4型)建筑CAD图纸
- 3层别墅(D3型)建筑CAD图纸
全部评论
评论网友评论仅友表达个人看法,并不表明本站同意其观点,不得发布违反法律法规的内容!
