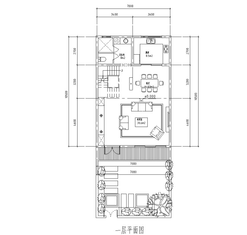
山地别墅紧凑型联排150平户型图纸设计2020
- 发布时间:2022-02-20
- 评论次数:0
- 浏览次数:0
- 文件大小:0.14 MB
- 收藏次数:0
-
文件名称:
附件-996557987705588570.dwg
山地别墅户型图下载
- 新中式度假感-山地别墅叠拼公寓户型图纸设计平面图
- 山地别墅联排北露台172平户型图纸设计
- 某山地别墅大面宽200平米户型图纸全套设计
- 山地联排别墅197-194平户型图纸设计平面图
- 山地别墅建筑设计CAD图纸
- 山地别墅建筑设计CAD图纸
- 2层山地联排别墅设计方案
- 3层山地别墅建筑扩初CAD图纸
- 套独立山地别墅建筑施工CAD图纸
- 3层山地别墅建筑CAD施工图纸
- 比较实用的山地小别墅建筑CAD图纸
- 简单实用的山地小别墅建筑CAD图纸
- 依山地地形钢结构别墅CAD施工图纸()
- 3层山地别墅建筑扩初初设图纸
- 2层双拼别墅户型图纸
- 山地旅馆设计
- 150平米别墅户型图纸设计
- 6面宽-叠加别墅户型图纸设计
- 知名企业联排别墅户型图纸设计
- 平地别墅小区公寓平面户型图纸
全部评论
评论网友评论仅友表达个人看法,并不表明本站同意其观点,不得发布违反法律法规的内容!
