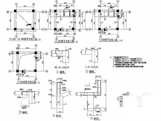
3层框架结构钟楼结构设计施工大样图
- 发布时间:2021-12-04
- 评论次数:0
- 浏览次数:0
- 文件大小:0.89 MB
- 收藏次数:0
- 
								文件名称: 附件-995887587860596077785.rar 附件-995887587860596077785.rar
								框架图设计下载
							
						- 屋顶钟楼结构设计施工图纸
- 屋顶钟楼结构设计CAD施工图纸
- 钢结构钟楼施工图纸.
- 3层框架结构钟楼结构CAD施工方案图纸(建筑图纸)
- 钢结构钟楼结构设计CAD施工图纸
- 钢结构钟楼结构设计CAD施工图纸.dwg
- 钢结构屋顶钟楼结构施工图纸
- 酒楼楼顶钢结构钟楼结构施工图纸
- 6层客运中心顶部轻钢钟楼结构施工图纸
- 广厦天都城景观建筑施工CAD图纸(艺术、钟楼)(墙身大样)
- 6层客运中心顶部轻钢钟楼结构CAD施工图纸
- 一整套古建戏台和钟楼古建CAD施工图纸.dwg
- 尖顶造型艺术钟楼全套施工图纸.dwg
- 星光学校7层钟楼建筑初步图纸(高22米)
- 钟楼设计方案(观景平台层CAD平面图)
- 星光学校7层钟楼建筑初步图纸和cad总平面图
- 3层钢框架结构厂房结构设计施工大样图
- 4层框架结构员工宿舍结构设计施工大样图
- 框架结构电子公司厂房结构设计施工大样图
- 文化园框架结构餐厅结构设计施工大样图
全部评论
						
							评论网友评论仅友表达个人看法,并不表明本站同意其观点,不得发布违反法律法规的内容!
						
						
 
	              	 
	              	 
	              	