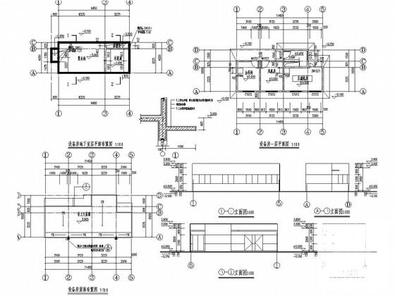
500t污水处理一体化设施施工图纸
- 发布时间:2021-12-04
- 评论次数:0
- 浏览次数:0
- 文件大小:1.35 MB
- 收藏次数:0
- 
								文件名称: 附件-995887988966775675598.rar 附件-995887988966775675598.rar
								一体化污水处理设施下载
							
						- 公共文化设施特区一体化配置研究.pdf
- 150吨小型污水处理站一体化设计方案
- 污水处理设施工艺平面CAD图纸
- 污水处理设施结构CAD图纸
- 大型污水处理设施全套图纸.dwg
- 景点地埋式一体化污水处理工程施工图纸
- 河渠污水处理设施工程施工图纸
- 污水处理设施结构图(7页CAD图纸)
- 河渠污水处理设施CAD施工图纸.dwg
- 河渠污水处理设施工程CAD施工图纸.dwg
- 黑臭河渠综合治理污水处理设施工程施工图纸
- 6层旧城改造工程住宅给排水CAD施工图纸(污水处理设施)
- 隧道设施分布CAD图纸
- 防雷设施大样CAD图纸
- 剪力墙结构商业住宅临时设施搭设施工方案(11页)_CAD
- 大厦石材、玻璃、保温一体化幕墙结构施工图纸
- 天子湖大道污水一体化提升泵站设计施工图纸
- 钢制一体化供水工程净水设备成套CAD图纸
- 全球一体化背景下的建筑教育
- 别墅小区太阳能与建筑一体化设计
全部评论
						
							评论网友评论仅友表达个人看法,并不表明本站同意其观点,不得发布违反法律法规的内容!
						
						
 
	              	 
	              	 
	              	 
	              	 
	              	