您当前位置:首页 »  其他文档 » 其他资料 »  挡土墙结构设计图纸

挡土墙结构设计图纸

附件详情

某挡土墙结构设计图
该资料为:某挡土墙结构设计图
该资料包含:
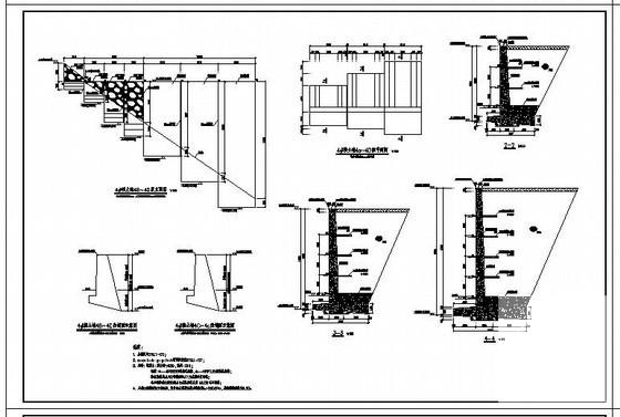
设计总说明、挡土墙 平面布置图 、平面配筋图、节点配筋图、立面图共13张图纸。

以下是附件的其中一部分截图,共4张,您也可以 搜索 更多您想要的资源
  • 挡土墙设计图纸 - 1
    挡土墙设计图纸 - 1
  • 挡土墙设计图纸 - 2
    挡土墙设计图纸 - 2
  • 挡土墙设计图纸 - 3
    挡土墙设计图纸 - 3
  • 挡土墙设计图纸 - 4
    挡土墙设计图纸 - 4
以上是部分截图,请下载附件后查看完整高清内容
网站首页  | 
本站所有内容均由网友自主分享,仅供学习和参考,如有侵权内容或者违法行为,请及时联系站长删除。