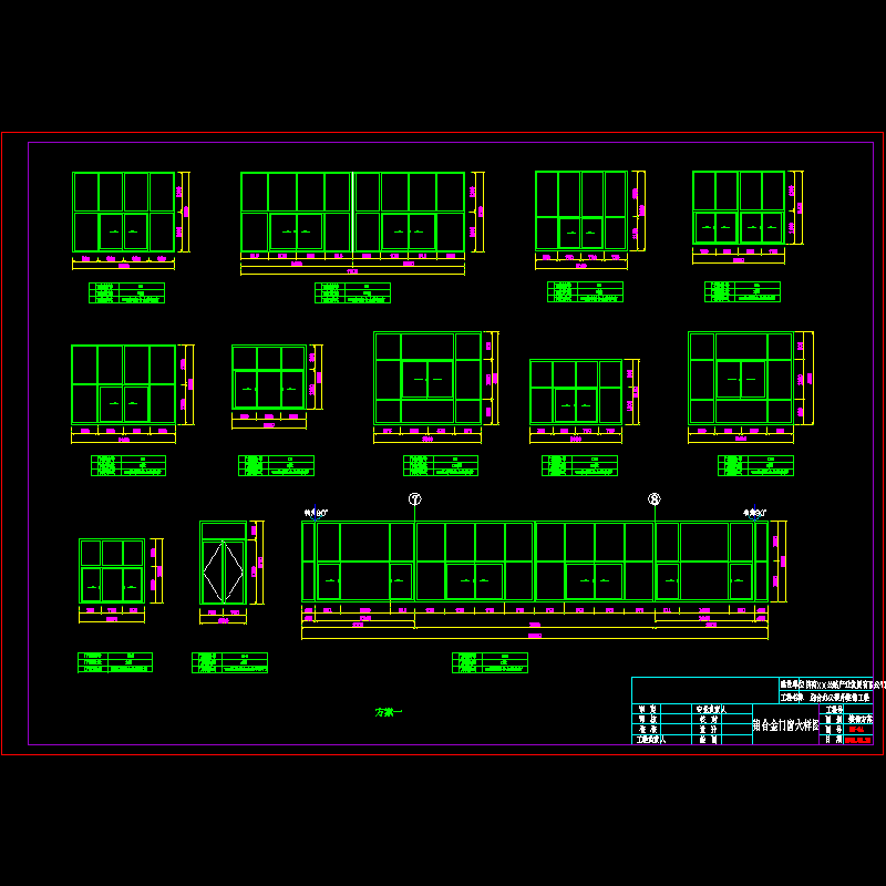
公路综合楼外装饰部分幕墙CAD大样图
- 发布时间:2023-12-28
- 评论次数:0
- 浏览次数:0
- 文件大小:1.1 MB
- 收藏次数:0
-
文件名称:
附件-995905888895775799.rar
相关下载
- 办公楼外装饰幕墙施工组织设计(铝塑板幕墙玻璃幕墙石材幕墙)
- 33层公寓商业工程裙楼外立面幕墙装饰CAD施工图
- 公寓商业工程6号楼裙楼外立面幕墙装饰工程CAD施工图纸(设计说明)
- 公寓商业工程4号楼裙楼外立面幕墙装饰工程建筑施工CAD图纸
- 公寓商业工程1号楼裙楼外立面幕墙装饰工程建施CAD施工图纸(说明)
- 公寓商业工程2号楼裙楼外立面幕墙装饰工程建施CAD施工图纸(说明)
- 科研楼外装饰工程隐框玻璃幕墙典型节点示意图纸(CAD图纸格式)
- 4层欧式综合楼外装石材干挂玻璃幕墙设计施工大样图.dwg
- 综合楼外幕墙施工组织设计(152米鲁班奖)
- 机场航站楼幕墙方案部分大样图.
- 法院审判楼外幕墙施工组织设计
- 住宅楼外墙装饰二次深化设计建筑施工CAD图纸
- 53米11层框架结构办公楼外装饰工程CAD施工图纸
- 国内办公楼外墙装饰施工方案(石材干挂)
- 研发厂房幕墙装饰工程CAD图纸
- 综合楼玻璃幕墙施工方案(中型装饰)(技术组织措施)
- 综合科技楼幕墙装饰工程施工组织设计(安全管理措施)
- 7层综合楼外饰及幕墙工程设计总说明(word,8页).doc
- 33层公寓商业工程3号楼裙楼外立面幕墙装饰工程建工CAD施工图纸(设计说明)
- 平面玻璃幕墙部分节点
全部评论
评论网友评论仅友表达个人看法,并不表明本站同意其观点,不得发布违反法律法规的内容!
