admin
|
退出
|
登录
|
注册
|
0
积分
|
赚取积分
|
VIP领取积分
|
帮助中心
|
首页
【知石网】是一个专业资料分享学习平台,本站提供大量施工技术文档和设计下载。
首页
施工图纸
施工方案
施工组织
施工交底
合同表格
建筑结构
节点详图
毕业设计
平面图纸
景观设计
电气知识
环保知识
您当前位置:
首页
»
其他文档
»
其他资料
»
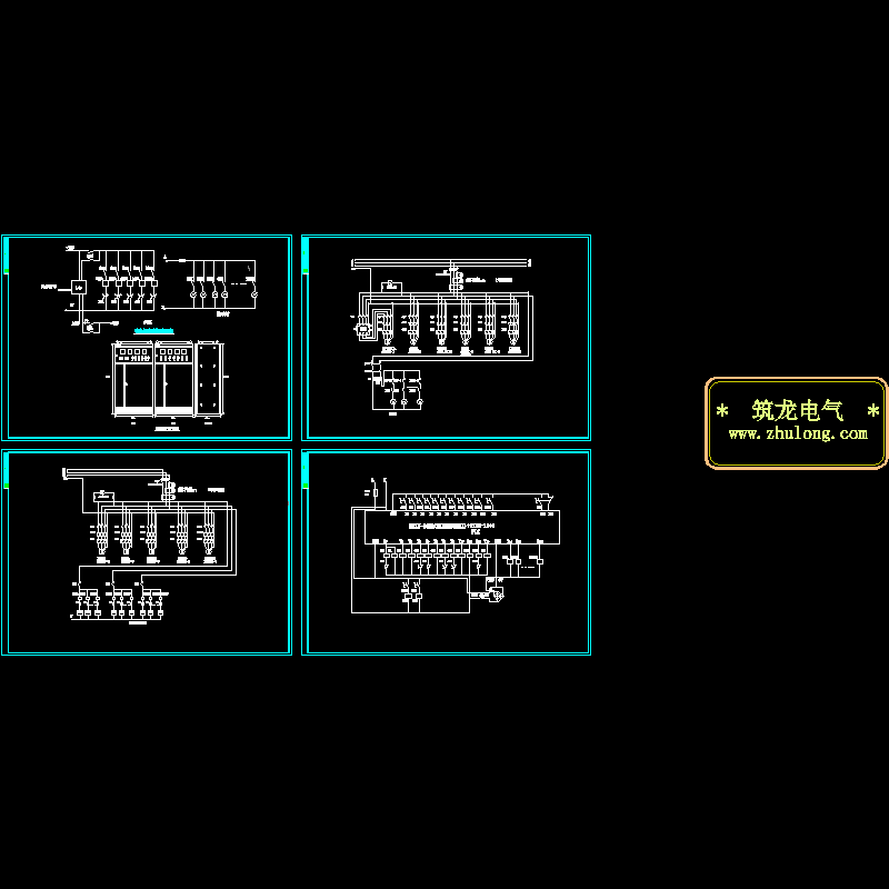
音乐喷泉控制原理CAD图纸
音乐喷泉控制原理CAD图纸
资料简介
赚取积分
搜索更多资源
附件详情
音乐喷泉控制原理图。
以下是附件的其中一部分截图,共1张,您也可以
搜索
更多您想要的资源
第 1 张图
以上是部分截图,请下载附件后查看完整高清内容
发布时间:2023-12-28
评论次数:0
浏览次数:0
文件大小:0.09 MB
收藏次数:0
文件名称:
附件-995999885760978778.rar
下载信息
加入收藏
赚取积分
立即下载
对不起,系统繁忙,请稍后再试,或联系管理员
对不起,您的积分余额不足,请
充值积分
恭喜购买成功!请
下载文件
相关下载
音乐喷泉控制原理CAD图纸
音乐喷泉电气控制CAD图纸
音乐旱喷泉施工全套CAD图纸
音乐喷泉和水处理示意CAD图纸
电机控制原理汇总
变频控制原理CAD图纸
水泵控制原理CAD图纸
照明控制原理CAD图纸
变频控制原理CAD图纸
UPS控制原理CAD图纸
水泵控制原理CAD图纸
风淋室控制原理CAD图纸
地热控制原理CAD图纸
照明控制原理CAD图纸
照明控制原理CAD图纸
照明控制原理CAD图纸
行车控制原理图纸.
公园喷泉彩灯电气照明控制CAD图纸
应急照明控制原理
排污泵控制原理
全部评论
评论
网友评论仅友表达个人看法,并不表明本站同意其观点,不得发布违反法律法规的内容!
下载排行
大坝变频原理CAD图纸(控制原理图纸)
DCS远程控制变频控制原理CAD图纸
路灯控制箱控制原理CAD图纸
全自动控制柜控制原理CAD图纸
路灯照明控制箱控制原理CAD图纸
水泵控制柜控制原理CAD图纸
各种行车控制电气原理CAD图纸
PLC采集控制原理设计CAD图纸
石灰厂电气CAD图纸(控制原理)
风机、水泵控制原理CAD图纸
下载推荐
各种水泵控制原理CAD图纸
空调风柜控制原理CAD图纸
排烟风机控制原理CAD图纸
智能控制CAD原理图纸
换热站配电及控制原理CAD图纸
双电源控制原理CAD图纸
水泵控制柜原理CAD图纸
变频恒压供水控制原理CAD图纸
电动闸阀、球阀控制原理CAD图纸
路灯箱控制原理CAD图纸
网站首页
|
信息产业部备案/许可证编号:苏ICP备2021052619号-1
苏公网安备:32041102001778号
本站所有内容均由网友自主分享,仅供学习和参考,如有侵权内容或者违法行为,请及时联系站长删除。