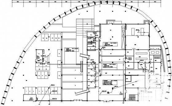
4层22000平米孵化中心办公楼弱电施工图纸
- 发布时间:2021-12-03
- 评论次数:0
- 浏览次数:0
- 文件大小:1.3 MB
- 收藏次数:0
-
文件名称:
附件-995856976669996508586.rar
办公楼弱电图纸下载
- 4层孵化中心办公楼弱电CAD施工图纸(火灾自动报警系统)
- 孵化中心施工图纸电气.dwg
- 孵化中心CAD图纸给排水
- 5层产业孵化中心办公楼电气装饰装修CAD施工图纸.dwg
- 5层孵化中心CAD施工图纸暖通
- 产业园区孵化中心室外环境.dwg
- 孵化中心科技楼电气CAD施工图纸(2018最新)
- 检验中心基地建设项目孵化楼结构CAD施工图纸
- 科创中心孵化园框架结构施工图纸cad平面图
- 活动中心弱电设计
- 20层行政中心弱电CAD图纸
- 应急指挥中心弱电图纸.dwg
- 孵化大楼空调机房图纸.
- 国际会议中心弱电施工图纸.
- 政务中心弱电CAD施工图纸.dwg
- 大数据产业孵化服务中心暖通施工图纸平面图及系统图
- 检验中心基地建设项目孵化楼结构设计CAD施工图纸(边缘构件配筋)
- 9层德胜科技孵化中心给排水及消防工程施工设计CAD图纸(,27张)
- 3层科创中心孵化园给排水施工图纸cad平面图
- 办公楼控制中心弱电集成CAD施工图纸(钢筋混凝土结构)()
全部评论
评论网友评论仅友表达个人看法,并不表明本站同意其观点,不得发布违反法律法规的内容!
