admin
|
退出
|
登录
|
注册
|
0
积分
|
赚取积分
|
VIP领取积分
|
帮助中心
|
首页
【知石网】是一个专业资料分享学习平台,本站提供大量施工技术文档和设计下载。
首页
施工图纸
施工方案
施工组织
施工交底
合同表格
建筑结构
节点详图
毕业设计
平面图纸
景观设计
电气知识
环保知识
您当前位置:
首页
»
其他文档
»
其他资料
»
隧道光照度仪大样CAD图纸
隧道光照度仪大样CAD图纸
资料简介
赚取积分
搜索更多资源
附件详情
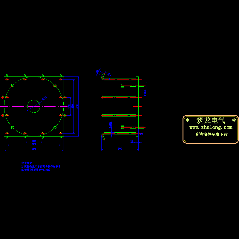
该附件包括隧道内的照度仪的结构、原理、接线方式等等。
以下是附件的其中一部分截图,共10张,您也可以
搜索
更多您想要的资源
光墙照度仪外观图201、wg.dwg
光照仪201基础法兰cf01-c-gzd、2.0、jcfl.dwg
光照度仪201安装基础图cf01-c-gzd、2.0、azjc.dwg
光照度仪201安装支架cf01-c-gzd、2.0、azzj.dwg
光照度仪201安装环境图cf01-c-gzd、2.0、azhj.dwg
光照度仪201立柱图cf01-c-gzd、2.0、lz.dwg
光照度仪203接线图cf01-c-gzd、2.0、jx.dwg
光照度仪203支架图cf01-c-gzd、2.0、zj.dwg
光照度仪安装环境图cf01-c-gzdy、2.0、azhj.dwg
照度仪203外观尺寸图cf01-c-zd、2.0、wg.dwg
以上是部分截图,请下载附件后查看完整高清内容
发布时间:2023-12-28
评论次数:0
浏览次数:0
文件大小:0.19 MB
收藏次数:0
文件名称:
附件-995999098707998789.rar
下载信息
加入收藏
赚取积分
立即下载
对不起,系统繁忙,请稍后再试,或联系管理员
对不起,您的积分余额不足,请
充值积分
恭喜购买成功!请
下载文件
相关下载
隧道亮度检测器、风向风速仪预留预埋管件设计CAD图纸
隧道亮度检测器与风向风速仪预留预埋管件设计CAD图纸
路基观测仪标布置详图纸CAD
工程仪控管线敷设平面布置CAD图纸
流速仪量水系统布置CAD图纸
钢厂均热炉电气仪控图纸
隧道棚洞设计大样图
全站仪三维示意图纸(CAD)
隧道施工CAD大样图(隧道轴线间距33m)
双线隧道洞身设计大样CAD图纸
隧道施工缝防水设计大样图2020
隧道棚洞设计CAD施工大样图
隧道衬砌断面部分施工大样图.
隧道设计CAD图纸
隧道模板CAD图纸
隧道施工图纸.
铁路隧道图纸例.
隧道中隔墙施工方案(连拱隧道)
隧道施工监理细则
隧道施工资料
全部评论
评论
网友评论仅友表达个人看法,并不表明本站同意其观点,不得发布违反法律法规的内容!
下载排行
隧道监控测量_CAD
隧道电气施工图纸
隧道照明平面CAD图纸
公路隧道设计CAD图纸
隧道设施分布CAD图纸
双线隧道断面CAD图纸
隧道衬砌设计CAD图纸
隧道衬砌全CAD图纸
隧道衬砌台车CAD图纸
隧道设计图纸.dwg
下载推荐
隧道设计图纸.dwg
隧道设计图纸.dwg
隧道设计图纸.dwg
隧道工程实施性施工组织设计2010(隧道总长度2541米浅埋隧道)
复合式衬砌隧道金属线槽安装及大样节点CAD详图纸设计
分离式双洞隧道电缆沟大样节点CAD详图纸设计
三车道隧道钢架支撑大样图纸.dwg
隧道段改造工程给排水大样图纸CAD.dwg
隧道段改造工程给水节点大样图纸CAD.dwg
隧道设计CAD图纸(隧道洞门一般构造图纸)
网站首页
|
信息产业部备案/许可证编号:苏ICP备2021052619号-1
苏公网安备:32041102001778号
本站所有内容均由网友自主分享,仅供学习和参考,如有侵权内容或者违法行为,请及时联系站长删除。