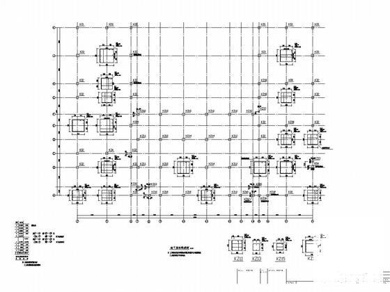
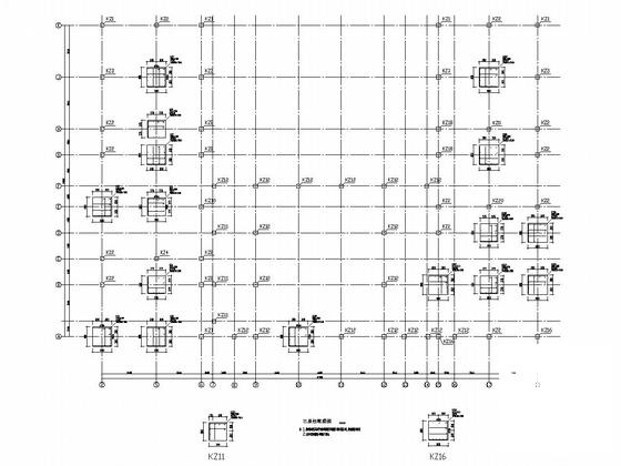
6层框架结构综合大楼结构施工图纸
- 发布时间:2021-12-03
- 评论次数:0
- 浏览次数:0
- 文件大小:4.98 MB
- 收藏次数:0
- 
								文件名称: 附件-995888585586757857900.rar 附件-995888585586757857900.rar
								框架结构结构施工图下载
							
						- 框架结构CAD施工图纸
- 框架结构CAD施工图纸
- 4层框架结构美食广场框架结构设计施工图纸
- 框架结构垃圾房结构施工图纸
- 4层框架结构酒店结构施工图纸
- 3层框架结构食堂结构施工图纸
- 4层框架结构食堂结构施工图纸
- 钢框架结构电梯井结构施工图纸
- 5层框架结构别墅结构施工图纸
- 2层框架结构别墅结构施工图纸
- 6层框架结构酒店结构施工图纸
- 5层框架结构酒店结构施工图纸
- 地上单层框架结构餐厅结构施工图纸
- 4层框架结构商场结构施工图纸
- 地上单层框架结构会所结构施工图纸
- 框架结构车库结构CAD施工图纸
- 单层框架结构厂房结构CAD施工图纸
- 单层框架结构厂房结构CAD施工图纸
- 单层框架结构厂房结构CAD施工图纸
- 单层框架结构食堂结构CAD施工图纸
全部评论
						
							评论网友评论仅友表达个人看法,并不表明本站同意其观点,不得发布违反法律法规的内容!
						
						
 
	              	 
	              	 
	              	 
	              	 
	              	