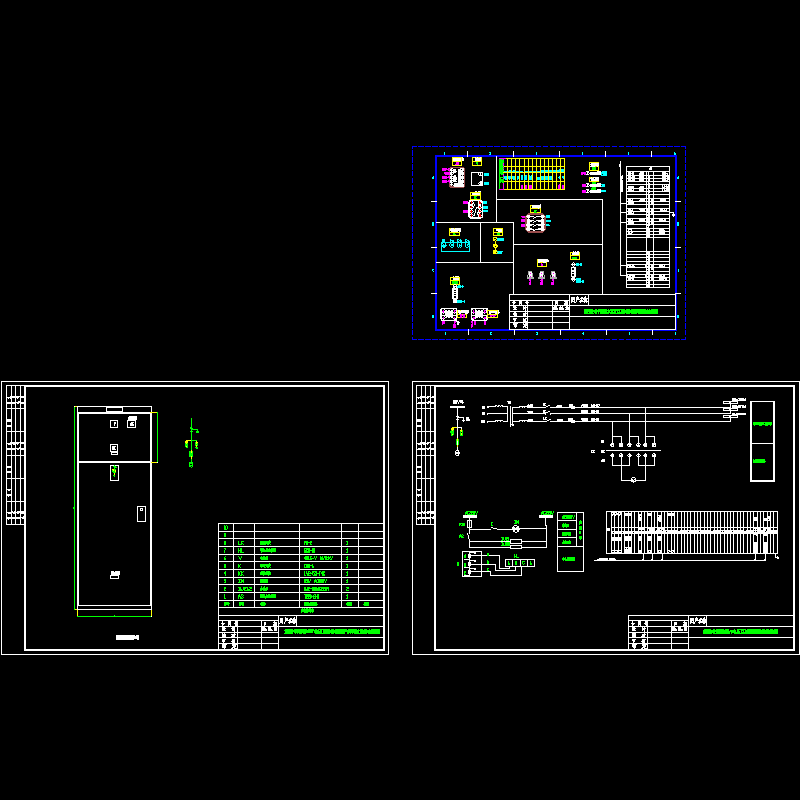
10KV高压柜电气CAD图纸
- 发布时间:2023-12-28
- 评论次数:0
- 浏览次数:0
- 文件大小:1.64 MB
- 收藏次数:0
- 
								文件名称: 附件-995788065057577967.rar 附件-995788065057577967.rar
								相关下载
							
						- 泵站10KV高压柜设计CAD图纸
- 10kv高压柜单元图纸
- 10KV高压柜电气控制原理CAD图纸汇总
- 10KV高压柜电气图(二次原理图,共17页图纸).dwg
- 10KV高压柜XGN2一次系统CAD图纸
- 高压柜10KV二次接线CAD图纸
- 空压机高压柜电气原理CAD图纸
- 6KV高压柜电气CAD图纸
- 高压柜电气设计图纸.dwg
- 高压柜原理图纸
- 6KV高压柜电气施工CAD图纸(变压器柜原理).dwg
- 高压柜一次系统CAD图纸
- 高压柜一次系统CAD图纸
- KYN28高压柜CAD详图纸
- 10kV配电所全套电气施工图纸
- 小区10KV配电所电气施工图纸
- 高压变频10kV电机电气CAD图纸
- 10KV配电系统电气原理CAD图纸
- 10kV变电所电气原理CAD图纸
- 10kV开闭所电气CAD图纸
全部评论
						
							评论网友评论仅友表达个人看法,并不表明本站同意其观点,不得发布违反法律法规的内容!
						
						
 
	              	 
	              	 
	              	 
	              	 
	              	