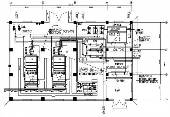
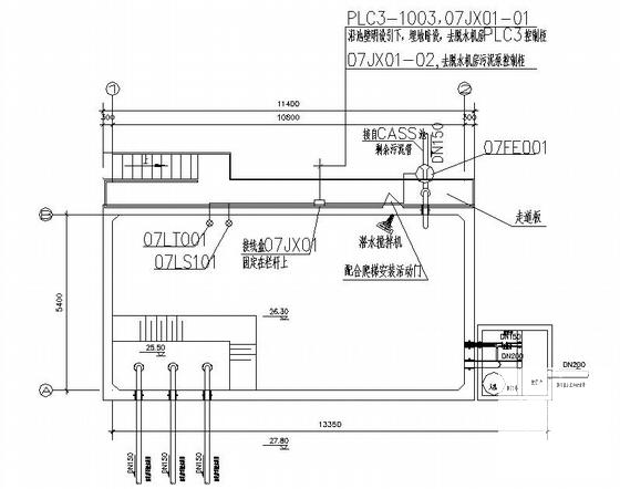
污水厂电气自动化设计施工图纸
- 发布时间:2021-12-03
- 评论次数:0
- 浏览次数:0
- 文件大小:4.52 MB
- 收藏次数:0
- 
								文件名称: 附件-995856888078965575695.rar 附件-995856888078965575695.rar
								电气自动化设计下载
							
						- 涿州污水厂电气自动化CAD图纸
- 水厂全套电气及自动化设计施工图纸,共34张
- 水厂全套电气及自动化CAD施工图纸
- 自来水厂自动化系统CAD图纸
- 自来水厂工程变配电及电气自动化系统图纸(二级负荷)
- 自动化工程电气控制原理CAD图纸
- 甲醛生产自动化电气图纸.dwg
- 自来水厂电气及仪表自动化工程CAD施工图纸123张(自控仪表、技改变配电、送水泵房等)
- 小区管线综合设计cad图纸,污废合流,雨污分流方式
- 污水厂电气CAD施工图纸
- 水厂电气CAD施工图纸.dwg
- 工业水厂建筑电气设计CAD施工图纸
- 明胶净水自动化工程电气设计CAD施工图纸.dwg
- 道路雨污排水设计CAD施工图纸.dwg
- 5000吨水厂电气CAD图纸
- 污水厂全套电气原理CAD图纸
- 自动化工程电气控制原理设计图纸.dwg
- 知名水厂工程电气CAD施工图纸(图纸清晰)
- 明胶净水自动化工程电气CAD施工图纸
- 2层净化水厂电气CAD施工图纸
全部评论
						
							评论网友评论仅友表达个人看法,并不表明本站同意其观点,不得发布违反法律法规的内容!
						
						
 
	              	 
	              	