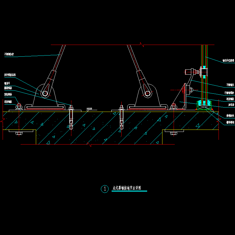
点式幕墙接地节点构造CAD详图纸
- 发布时间:2023-12-28
- 评论次数:0
- 浏览次数:0
- 文件大小:0.03 MB
- 收藏次数:0
-
文件名称:
附件-995907556967779057.rar
相关下载
- 点式幕墙铝板幕墙及玻璃棚钢构节点构造CAD详大样图
- 点式幕墙节点构造详细设计CAD图纸
- 点式幕墙节点构造详细设计CAD图纸
- 点式幕墙水平节点构造CAD详图纸
- 银行点式幕墙节点构造CAD详图纸
- 点式幕墙节点构造CAD详图纸
- 点式幕墙垂直节点构造CAD详图纸
- 拉杆式点式幕墙节点详细设计CAD图纸
- 拉杆式点式幕墙节点CAD详图纸
- 点式幕墙CAD图纸
- 点式幕墙构造详细设计CAD图纸
- 点支式玻璃幕墙节点大样图纸
- 52个点式幕墙节点详图纸cad
- 点式玻璃幕墙节点详细设计CAD图纸
- 点支式玻璃幕墙CAD节点图纸
- 点支式幕墙转角封边CAD节点图纸
- 点支式幕墙横剖CAD节点图纸(一)
- 点支式玻璃幕墙垂直CAD节点图纸
- 拉索式点玻幕墙节点CAD图纸
- 点式玻璃幕墙节点详细设计CAD图纸
全部评论
评论网友评论仅友表达个人看法,并不表明本站同意其观点,不得发布违反法律法规的内容!
