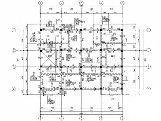
5层框架结构私家住宅楼建筑、结构全套施工大样图
- 发布时间:2021-12-03
- 评论次数:0
- 浏览次数:0
- 文件大小:2.57 MB
- 收藏次数:0
- 
								文件名称: 附件-995887975595557808985.rar 附件-995887975595557808985.rar
								框架结构结构建筑下载
							
						- 5层框架结构私家住宅建筑、结构全套CAD施工大样图(2013年出图)
- 私家庭院景观施工CAD图纸全套
- 私家别墅建筑CAD施工图纸
- 4层框架结构私人住宅楼建筑结构全套施工大样图
- 6层框架结构住宅楼全套施工大样图2017
- 私家泳池CAD施工大样图.dwg
- 私家园林古建施工CAD大样图
- 5层框架结构花园洋房全套建筑结构施工大样图
- 框架结构私家别墅结构设计CAD施工图纸.dwg
- 乡村私家舒适型2层住宅楼建筑施工CAD图纸
- 8层框架结构私家住宅楼结构CAD施工图纸(桩基础含建筑图纸)
- 私家别墅施工结构CAD图纸
- 别墅私家花园景观设计全套CAD施工图纸
- 简约中式私家豪宅中式庭院景观设计全套CAD施工图纸.dwg
- 别墅私家花园景观设计施工CAD图纸全套
- 5层框架结构住宅楼结构施工CAD大样图(建筑大样图)
- 3500平米7层框架结构带商业网点住宅楼建筑结构全套施工大样图
- 6层框架结构花园洋房建筑结构水暖电全套施工大样图
- 3层框架结构合院别墅全套建筑结构施工大样图
- 框架结构办公楼全套建筑结构设计施工大样图
全部评论
						
							评论网友评论仅友表达个人看法,并不表明本站同意其观点,不得发布违反法律法规的内容!
						
						
 
	              	 
	              	 
	              	 
	              	 
	              	