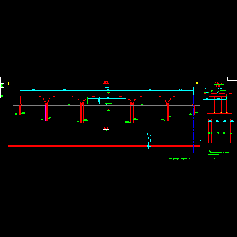
V型墩连续刚构主桥桥型布置节点CAD详图纸设计
- 发布时间:2023-12-28
- 评论次数:0
- 浏览次数:0
- 文件大小:0.04 MB
- 收藏次数:0
- 
								文件名称: 附件-995997795680788989.rar 附件-995997795680788989.rar
								相关下载
							
						- 连续刚构主桥桥型布置节点CAD详图纸设计
- m连续刚构桥桥型布置节点CAD详图纸设计
- v型刚构桥成套CAD设计图纸.dwg
- 斜拉桥主桥桥型布置节点CAD详图纸设计
- 9418094m预应力混凝土连续刚构桥型总体布置节点CAD详图纸设计
- 三跨预应力混凝土连续刚构桥主墩桩基钢筋布置CAD图纸
- 连续刚箱桥桥型部置节点详细CAD图纸设计(中央分隔带)
- m连续刚构主墩承台钢筋布置节点CAD详图纸设计
- m连续刚构薄臂墩钢筋布置节点CAD详图纸设计
- 1-24m跨V型桥台刚构拱桥设计CAD图纸
- 193819m预应力混凝土铰接斜腿刚构桥型整体布置节点CAD详图纸设计
- 三跨预应力混凝土连续刚构桥桥墩墩帽设计CAD图纸
- 梁拱组合钢管拱桥主桥桥型布置节点CAD详图纸设计
- 部分预应力混凝土斜拉桥主桥桥型布置节点CAD详图纸设计
- 三跨预应力混凝土连续刚构桥U型桥台台后处理设计图纸
- 连续刚箱桥梁底楔型块布置示意节点CAD详图纸设计
- 连续刚构桥挂篮设计CAD图纸
- 高速公路连续刚构桥设计格式图纸
- 高速公路连续刚构桥设计图纸.
- 公路跨长江特大组合体系桥梁主桥桥型节点布置CAD图纸
全部评论
						
							评论网友评论仅友表达个人看法,并不表明本站同意其观点,不得发布违反法律法规的内容!
						
						
