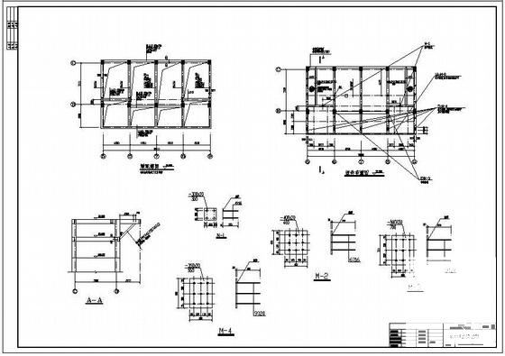
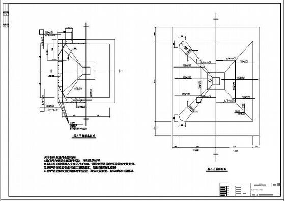
烟气脱硫技改石灰石仓结构施工图纸
- 发布时间:2021-12-03
- 评论次数:0
- 浏览次数:0
- 文件大小:0.55 MB
- 收藏次数:0
- 
								文件名称: 附件-995878775098706607887.rar 附件-995878775098706607887.rar
								石灰石烟气脱硫下载
							
						- 烟气脱硫系统CAD图纸
- 锅炉烟气脱硫工程白泥法脱硫管路图纸
- 锅炉烟气脱硫除尘工程CAD图纸
- 电厂烟气脱硫电气主接线
- 烟气脱硫管道工程结构图纸
- 烟气脱硫工程基础施工图纸详图
- 烟气FGD脱硫工艺CAD施工图纸
- 烟气脱硫工程基础详细设计CAD施工图纸
- 烟气脱硫工程玻璃鳞片防腐施工方案
- 玻璃厂窑炉烟气治理工程脱硫图纸
- 电厂烟气脱硫工艺流程CAD图纸
- 纸业公司锅炉烟气脱硫工程白泥法脱硫管路布置图纸
- 石灰石粉仓结构CAD施工图纸
- 石灰石粉仓结构CAD施工图纸
- 石灰石粉仓结构CAD施工图纸.dwg
- 石灰石粉仓结构CAD施工图纸.dwg
- 烧结机烟气脱硫塔本体钢结构CAD施工图纸
- 石灰石粉仓结构设计说明
- 石灰石粉仓结构设计说明.dwg
- 2×330MW机组脱硫技改工程吸收塔安装施工方案
全部评论
						
							评论网友评论仅友表达个人看法,并不表明本站同意其观点,不得发布违反法律法规的内容!
						
						
 
	              	 
	              	 
	              	