admin
|
退出
|
登录
|
注册
|
0
积分
|
赚取积分
|
VIP领取积分
|
帮助中心
|
首页
【知石网】是一个专业资料分享学习平台,本站提供大量施工技术文档和设计下载。
首页
施工图纸
施工方案
施工组织
施工交底
合同表格
建筑结构
节点详图
毕业设计
平面图纸
景观设计
电气知识
环保知识
您当前位置:
首页
»
其他文档
»
其他资料
»
木亭施工大样CAD图纸
木亭施工大样CAD图纸
资料简介
赚取积分
搜索更多资源
附件详情
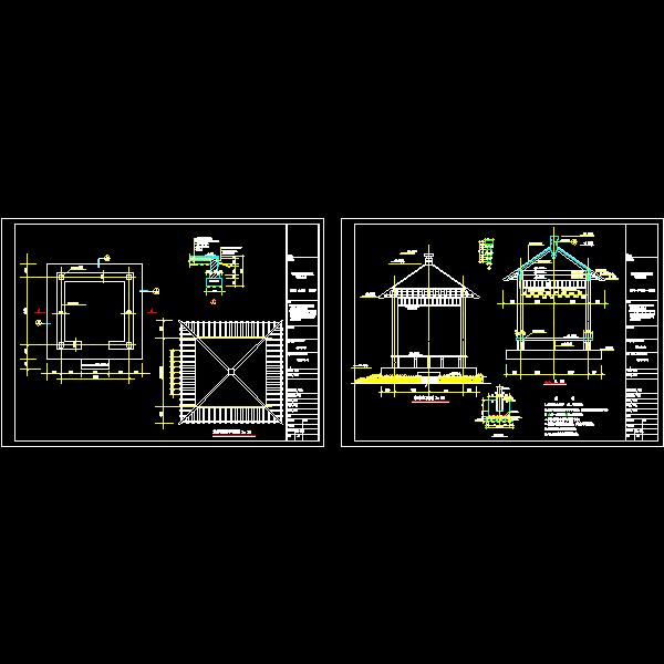
某木亭施工大样图:木亭屋面平面图 1:20、木亭立面图 1:20、基础剖面图 及剖面图,大样图。
共有两张CAD图纸,欢迎网友下载借鉴~
2
以下是附件的其中一部分截图,共1张,您也可以
搜索
更多您想要的资源
第 1 张图
以上是部分截图,请下载附件后查看完整高清内容
发布时间:2023-12-28
评论次数:0
浏览次数:0
文件大小:0.13 MB
收藏次数:0
文件名称:
附件-995950697897058688.rar
下载信息
加入收藏
赚取积分
立即下载
对不起,系统繁忙,请稍后再试,或联系管理员
对不起,您的积分余额不足,请
充值积分
恭喜购买成功!请
下载文件
相关下载
木亭施工CAD大样图
双木亭施工大样CAD详图纸
四角木亭施工大样CAD图纸
经典木亭施工CAD图纸,含青石大样
重檐木亭施工CAD详大样图
木亭CAD施工大样图
休闲木亭施工CAD详大样图
木亭结构CAD图纸
六角木亭竣工CAD大样图
木亭施工详细设计CAD图纸
景观木亭施工CAD详图纸
木亭施工CAD详图纸
木廊亭施工CAD详图纸
经典木亭CAD施工图纸
景观木亭施工CAD详图纸
木亭施工CAD详图纸
木亭施工CAD详图纸
木亭结构详细设计CAD图纸
中式景观木亭设计CAD图纸
单体木亭设计方案
全部评论
评论
网友评论仅友表达个人看法,并不表明本站同意其观点,不得发布违反法律法规的内容!
下载排行
木亭施工CAD图纸,共6张图纸
经典木亭施工详细设计CAD图纸
六角木亭施工详细设计CAD图纸
木方亭施工详细设计CAD图纸
四角木亭施工详细设计CAD图纸
玻璃顶木亭施工CAD详图纸
四角木亭施工CAD详图纸
四角木亭施工CAD详图纸
四角木亭施工CAD详图纸
六角木亭CAD施工图纸
下载推荐
现代四角木亭施工CAD详图纸
四坡水木亭施工CAD详图纸
四角木亭施工CAD详图纸
木方亭完整施工CAD详图纸
四角木亭CAD施工图纸
两种木亭施工CAD详图纸
休闲木方亭施工CAD详图纸
六角木亭施工CAD详图纸
现代简约景观木亭施工CAD详图纸
双坡水木亭施工CAD详图纸
网站首页
|
信息产业部备案/许可证编号:苏ICP备2021052619号-1
苏公网安备:32041102001778号
本站所有内容均由网友自主分享,仅供学习和参考,如有侵权内容或者违法行为,请及时联系站长删除。