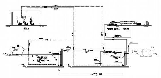
11吨每小时乳业废水处理施工套图纸
- 发布时间:2021-11-22
- 评论次数:0
- 浏览次数:0
- 文件大小:0.83 MB
- 收藏次数:0
-
文件名称:
附件-995860977086907557879.rar
废水处理图纸下载
- 11吨每小时乳业废水处理施工套CAD图纸
- 乳业公司新建厂房工程结构CAD图纸
- 乳业公司奶牛基地牧场建筑方案设计
- 乳业公司新建厂房工程结构图纸
- 君乐宝乳业项目生产车间电气工程CAD图纸
- 乳业有限公司污水处理设计CAD施工图纸.dwg
- 中成药厂废水处理设计套CAD施工图纸
- 电镀废水处理套CAD图纸(施工方案图设计)
- 一套废水处理工程设计CAD施工图纸
- 45吨每小时反渗透工艺CAD施工图纸
- 一套印染废水处理工程设计CAD施工图纸
- 150吨每小时超滤系统工艺流程CAD图纸
- 铝业公司厂房结构CAD施工图纸
- 酒业公司酒库建筑施工CAD图纸设计
- 铝业公司混捏成型车间施工方案
- 铝业公司阴极碳素设备施工方案
- 铝业公司焙烧车间施工方案(非标设备)
- 钢结构石业公司厂房扩建结构CAD图纸
- 酒业集团厂区给排水详规CAD图纸
- 印染废水处理CAD图纸
全部评论
评论网友评论仅友表达个人看法,并不表明本站同意其观点,不得发布违反法律法规的内容!
