8986平米23层商住楼电气施工图纸

  • 建筑设计面积:8986.07平方米
  • 建筑地上层数:23层
  • 建筑地下层数:1层
  • 分享投稿时间:近几年
  • 负荷等级:一级负荷
  • 防雷等级:三级
  • 地下室用途:仓储

附件详情

该项目总建筑面积为8986.07m2。该项目地上二十三,1,2层为公建,3-23层为住宅,层高2.8米。建筑高度为68.4米。建筑类别为一类高层建筑,耐火等级为一级,地下室耐火等级为一级抗震设防烈度为六度。
设计包括:低压 供配电系统 照明系统 、防雷及接地系统、安全保护系统、消防报警联动控制系统、有线电视系统、电话系统、综合布线系统、对讲系统等。

图2

图3

总缩略图

以下是附件的其中一部分截图,共4张,您也可以 搜索 更多您想要的资源
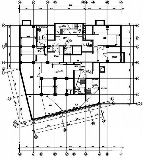
  • 楼电气施工图纸 - 1
    楼电气施工图纸 - 1
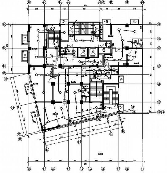
  • 楼电气施工图纸 - 2
    楼电气施工图纸 - 2
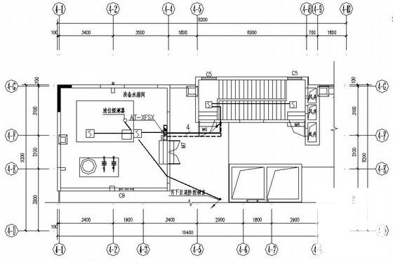
  • 楼电气施工图纸 - 3
    楼电气施工图纸 - 3
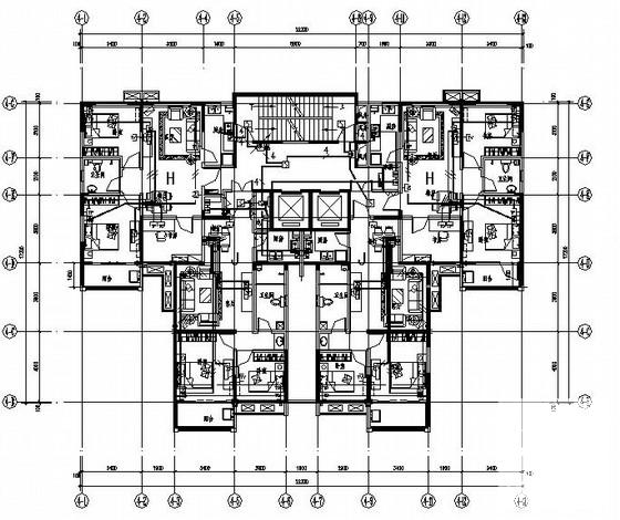
  • 楼电气施工图纸 - 4
    楼电气施工图纸 - 4
以上是部分截图,请下载附件后查看完整高清内容
网站首页  | 
本站所有内容均由网友自主分享,仅供学习和参考,如有侵权内容或者违法行为,请及时联系站长删除。