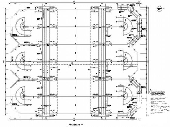
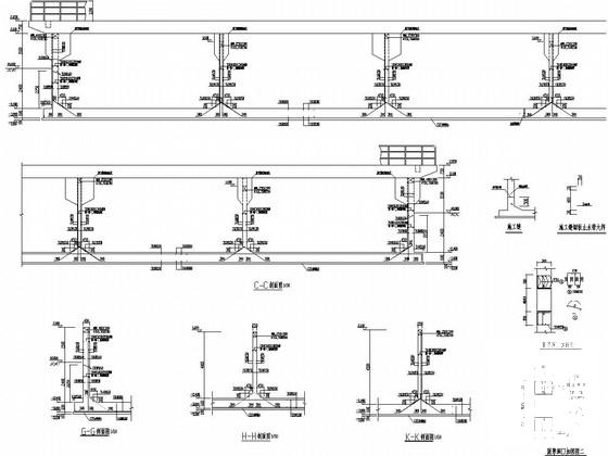
大型污水处理池三沟氧化沟土建副附工艺施工大样图
- 发布时间:2021-12-01
- 评论次数:0
- 浏览次数:0
- 文件大小:2.27 MB
- 收藏次数:0
- 
								文件名称: 附件-995877976596007807068.rar 附件-995877976596007807068.rar
								氧化沟污水处理工艺下载
							
						- 氧化沟工艺CAD施工图纸
- 城市污水处理厂卡鲁塞尔氧化沟工艺全套设计施工图纸
- 城市污水处理厂全套设计施工图纸(卡鲁赛尔氧化沟工艺)
- 城市污水处理厂卡鲁塞尔氧化沟工艺设计CAD施工图纸
- 污水处理厂氧化沟工艺流程图(6页CAD图纸)
- 2.5万吨每日污水处理厂氧化沟工艺CAD施工图纸
- 3.5万吨污水处理厂氧化沟工艺全套cad图纸_污水处理总设计
- 污水处理工程三沟式氧化沟与可调出水堰详细设计CAD图纸
- 公司制革废水处理氧化沟工艺大样图
- 国外氧化沟工艺设计施工图纸,含设计说明.dwg
- 国外氧化沟工艺辅助部分全套设计图纸,含设计说明.dwg
- 污水处理厂氧化沟结构CAD施工图纸
- 污水处理厂氧化沟CAD施工图纸(总)
- 污水处理厂CAD施工图纸(Carrousel氧化沟污泥泵房)
- 污水处理厂氧化沟CAD施工图纸
- 污水处理厂氧化沟结构CAD施工图纸
- 污水处理厂氧化沟工程结构CAD大样图
- 污水处理厂氧化沟全套CAD施工图纸
- 大型氧化沟结构设计施工图纸
- 污水厂氧化沟配筋节点构造详图纸
全部评论
						
							评论网友评论仅友表达个人看法,并不表明本站同意其观点,不得发布违反法律法规的内容!
						
						
 
	              	 
	              	 
	              	