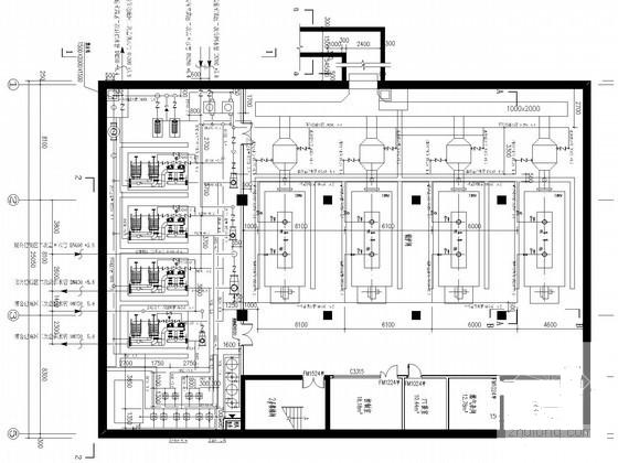
43万平米燃气锅炉房热力采暖系统设计初设图纸
- 发布时间:2021-12-01
- 评论次数:0
- 浏览次数:0
- 文件大小:1.25 MB
- 收藏次数:0
- 
								文件名称: 附件-995858588808588679507.rar 附件-995858588808588679507.rar
								燃气锅炉房设计图纸下载
							
						- 燃气锅炉房工艺设计CAD图纸
- 工厂燃气锅炉房设计CAD图纸
- 燃气采暖锅炉房设计CAD图纸
- 燃气锅炉房CAD详图纸
- 燃气锅炉房CAD施工图纸
- 燃气锅炉房电气CAD图纸
- 燃气锅炉房施工CAD图纸
- 国内酒店燃气模块锅炉房全套图纸.dwg
- 燃气常压热水锅炉房设计CAD施工方案图纸
- 燃气锅炉房工程热力系统设计CAD施工图纸
- 工厂锅炉房燃气管道设计CAD施工图纸
- 燃气锅炉房管路设计施工图纸.dwg
- 酒店燃气锅炉房设计CAD施工图纸,共3张.dwg
- 燃气锅炉房管道平面设计CAD大样图
- 6吨燃气锅炉房电气设计.dwg
- 小区燃气锅炉房改造工程CAD施工方案图纸
- 锅炉房CAD施工图纸(全自动燃气热水锅炉)
- 燃气蒸汽锅炉房系统全套CAD施工图纸
- 6吨燃气锅炉房电气CAD图纸
- 燃气锅炉房工程施工方案(混凝土基础)
全部评论
						
							评论网友评论仅友表达个人看法,并不表明本站同意其观点,不得发布违反法律法规的内容!
						
						
 
	              	 
	              	 
	              	