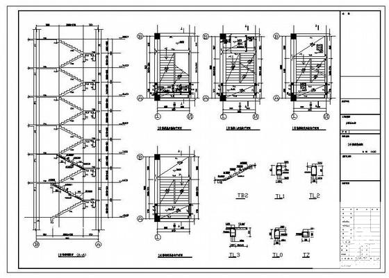
大学学生多层框架结构公寓结构施工图纸
- 发布时间:2021-12-01
- 评论次数:0
- 浏览次数:0
- 文件大小:1.52 MB
- 收藏次数:0
-
文件名称:
附件-995877579977675085987.rar
框架结构结构施工图下载
- 框架结构CAD施工图纸
- 框架结构CAD施工图纸
- 4层框架结构美食广场框架结构设计施工图纸
- 框架结构垃圾房结构施工图纸
- 4层框架结构酒店结构施工图纸
- 3层框架结构食堂结构施工图纸
- 4层框架结构食堂结构施工图纸
- 钢框架结构电梯井结构施工图纸
- 5层框架结构别墅结构施工图纸
- 2层框架结构别墅结构施工图纸
- 6层框架结构酒店结构施工图纸
- 5层框架结构酒店结构施工图纸
- 地上单层框架结构餐厅结构施工图纸
- 4层框架结构商场结构施工图纸
- 地上单层框架结构会所结构施工图纸
- 框架结构车库结构CAD施工图纸
- 单层框架结构厂房结构CAD施工图纸
- 单层框架结构厂房结构CAD施工图纸
- 单层框架结构厂房结构CAD施工图纸
- 单层框架结构食堂结构CAD施工图纸
全部评论
评论网友评论仅友表达个人看法,并不表明本站同意其观点,不得发布违反法律法规的内容!
