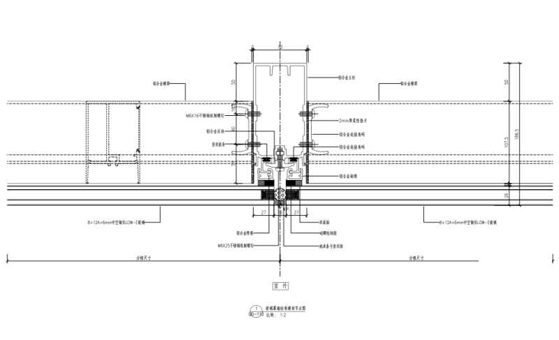
玻璃幕墙标准横剖节点图纸(轻钢龙骨石膏板)
- 发布时间:2023-03-05
- 评论次数:0
- 浏览次数:0
- 文件大小:0.57 MB
- 收藏次数:0
-
文件名称:
附件-995896857997887099.pdf
相关下载
- U型玻璃幕墙CAD节点图纸(经典)(轻钢龙骨石膏板)
- 8款详细玻璃幕墙外装CAD节点图纸(轻钢龙骨石膏板)
- 轻钢龙骨石膏板连接节点构造
- 石材幕墙标准横剖节点
- 轻钢龙骨石膏板隔墙详细剖面大样
- 83款玻璃幕墙设计节点大样剖面详细CAD图纸(轻钢龙骨石膏板)
- 玻璃幕墙及铝合金型材节点详细设计CAD图纸(,10张)(轻钢龙骨石膏板)
- 玻璃幕墙标准横剖节点详细设计CAD图纸
- 99张单元幕墙节点详细设计CAD图纸(轻钢龙骨石膏板)
- 各种铝合金玻璃门窗及大样CAD节点图纸(轻钢龙骨石膏板)
- 13张铝板幕墙节点详细设计CAD图纸(轻钢龙骨石膏板)
- 180隐框幕墙工艺CAD节点图纸(64张)(轻钢龙骨石膏板)
- 玻璃幕墙开启横剖节点详图纸cad
- 玻璃幕墙开启横剖节点详图纸cad
- 石材幕墙标准横剖节点CAD详图纸
- 铝板幕墙标准横剖节点图纸cad
- 铝板幕墙标准横剖节点图纸cad
- 石材幕墙标准节点详细设计CAD图纸(横剖、竖剖)
- 厂房工程施工组织设计(轻钢龙骨石膏板)
- 轻钢龙骨纸面石膏板隔墙设计说明.dwg
全部评论
评论网友评论仅友表达个人看法,并不表明本站同意其观点,不得发布违反法律法规的内容!
