admin
|
退出
|
登录
|
注册
|
0
积分
|
赚取积分
|
VIP领取积分
|
帮助中心
|
首页
【知石网】是一个专业资料分享学习平台,本站提供大量施工技术文档和设计下载。
首页
施工图纸
施工方案
施工组织
施工交底
合同表格
建筑结构
节点详图
毕业设计
平面图纸
景观设计
电气知识
环保知识
您当前位置:
首页
»
其他文档
»
其他资料
»
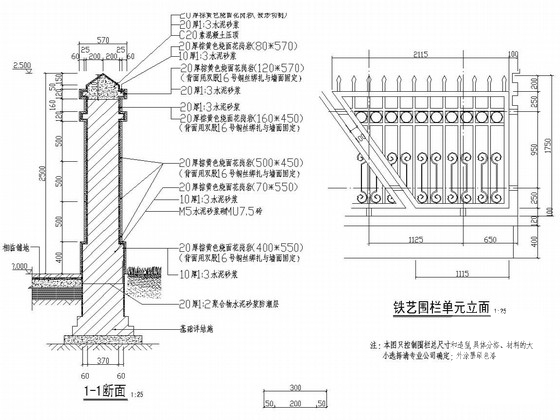
铁艺栏杆围墙CAD施工图纸(钢筋混凝土结构)
铁艺栏杆围墙CAD施工图纸(钢筋混凝土结构)
资料简介
赚取积分
搜索更多资源
建筑类别:园林建筑
图纸设计深度:施工图
建筑结构形式:钢筋混凝土结构, 钢结构
钢结构:轻钢结构
参考图纸:2张
该项目是栏杆围墙项目,包括:栏杆围墙,立面、剖面、平面图2张图。
以下是附件的其中一部分截图,共8张,您也可以
搜索
更多您想要的资源
第 1 张图
第 2 张图
第 3 张图
第 4 张图
第 5 张图
第 6 张图
第 7 张图
第 8 张图
以上是部分截图,请下载附件后查看完整高清内容
发布时间:2023-03-05
评论次数:0
浏览次数:0
文件大小:0.17 MB
收藏次数:0
文件名称:
附件-995788060890599878.rar
下载信息
加入收藏
赚取积分
立即下载
对不起,系统繁忙,请稍后再试,或联系管理员
对不起,您的积分余额不足,请
充值积分
恭喜购买成功!请
下载文件
相关下载
围墙铁艺栏杆方案CAD图纸
铁艺栏杆围墙设计CAD图纸
铁艺栏杆围墙设计CAD图纸
铁艺栏杆围墙5例
铁艺围墙栏杆施工大样CAD图纸
铁艺栏杆围墙施工图纸(园林建筑).
铁艺栏杆围墙详细设计CAD图纸
小区围墙铁艺栏杆竣工CAD图纸
围墙铁艺栏杆CAD大样图纸
铁艺围墙大样
新铁艺栏杆
铁艺栏杆结构CAD详图纸
经典铁艺围墙施工CAD图纸
铁艺围墙施工CAD图纸
小区铁艺围墙施工CAD图纸
经典铁艺围墙施工CAD图纸
铁艺栏杆施工样图纸
铁艺围墙设计CAD图纸
铁艺围墙设计CAD图纸
铁艺栏杆大样图纸
全部评论
评论
网友评论仅友表达个人看法,并不表明本站同意其观点,不得发布违反法律法规的内容!
下载排行
铁艺栏杆围墙详图纸平面图及立面图,剖面图
铁艺栏杆结构详细设计CAD图纸
铁艺围墙设计CAD详图纸(钢筋混凝土结构)——泛亚景观
小区铁艺围墙CAD施工图纸
小区铁艺造型围墙CAD施工图纸
小区铁艺围墙CAD施工图纸
小区铁艺围墙施工dwg和CAD图纸
特色铁艺围墙CAD施工图纸
入口铁艺栏杆CAD施工图纸
入口铁艺栏杆施工dwg和CAD图纸
下载推荐
铁艺栏杆设计通用图(41页CAD图纸)
铁艺栏杆立面设计CAD图纸(一)
铁艺栏杆立面设计CAD图纸(四)
铁艺栏杆标准段设计图纸3
铁艺栏杆标准段设计图纸1
铁艺栏杆立面设计CAD图纸(三)
铁艺栏杆CAD大样图样集
特色围墙设计CAD详大样图(钢筋混凝土结构砖砌结构铁艺)
特色围墙设计CAD详图纸(砖砌结构铁艺)
铁艺造型大门
网站首页
|
信息产业部备案/许可证编号:苏ICP备2021052619号-1
苏公网安备:2041102001103号
本站所有内容均由网友自主分享,仅供学习和参考,如有侵权内容或者违法行为,请及时联系站长删除。