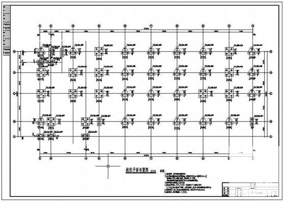
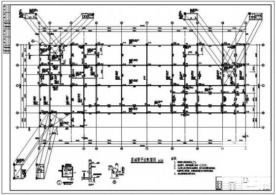
两层框架服装城客运站结构设计施工图纸
- 发布时间:2021-11-30
- 评论次数:0
- 浏览次数:0
- 文件大小:0.98 MB
- 收藏次数:0
- 
								文件名称: 附件-995877957667958959580.rar 附件-995877957667958959580.rar
								框架结构设计施工图下载
							
						- 框架仓库结构设计CAD施工图纸
- 框架食堂结构设计CAD施工图纸
- 框架厂房结构设计CAD施工图纸
- 框架泵房结构设计CAD施工图纸
- 框架冷库结构设计CAD施工图纸
- 4层框架结构美食广场框架结构设计施工图纸
- 多层框架结构设计
- 钢框架结构设计施工图纸,共19张施工图纸
- 除尘框架结构设计施工图纸,共11张施工图纸
- 框架住宅结构设计施工图纸(11张施工图纸)
- 5层框架大型施工图纸书馆结构设计CAD施工图纸
- 公司钢结构框架结构办公楼结构设计施工图纸
- 钢框架结构驻沪办公楼结构设计施工图纸
- 多层框架结构中学教学楼结构设计施工图纸
- 单层框架结构中学大门结构设计施工图纸
- 4层钢框架车间结构设计施工图纸(7度抗震)
- 3层化工园区框架仓库结构设计施工图纸(独立基础)
- 医院钢框架观光电梯结构设计施工图纸
- 钢框架主车间结构食品公司结构设计施工图纸
- 钢框架汽车4S店结构设计施工图纸
全部评论
						
							评论网友评论仅友表达个人看法,并不表明本站同意其观点,不得发布违反法律法规的内容!
						
						
 
	              	 
	              	 
	              	