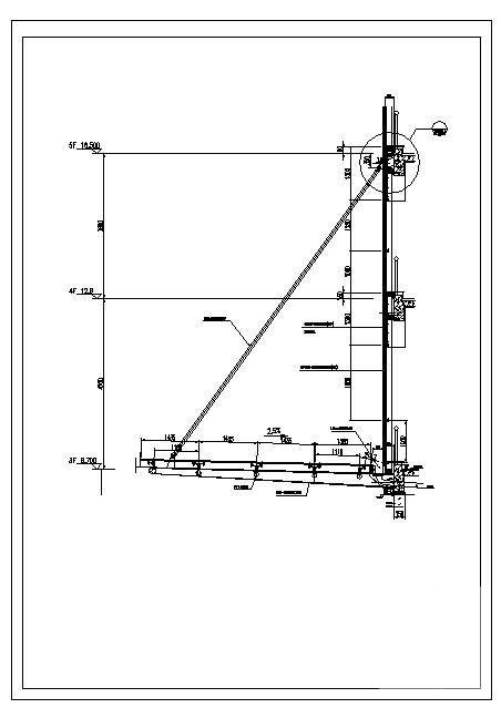
主入口弧形雨篷图纸,共6张图
- 发布时间:2021-11-30
- 评论次数:0
- 浏览次数:0
- 文件大小:0.85 MB
- 收藏次数:0
- 
								文件名称: 附件-995877907590587758786.rar 附件-995877907590587758786.rar
								相关下载
							
						- 主入口弧形雨篷CAD图纸
- 病房楼入口玻璃雨篷结构设计施工图纸,共8张
- 弧形雨篷梁结构施工图纸
- 弧形雨篷梁结构CAD施工图纸
- 钢结构弧形雨篷结构CAD施工图纸
- 弧形钢结构玻璃雨篷结构图纸.
- 单元入口雨篷平面节点构造详图纸
- 入口玻璃雨篷结构CAD施工图纸
- 办公楼主入口雨篷CAD施工图纸
- 办公楼主入口雨篷结构CAD图纸
- 入口玻璃雨篷结构CAD施工图纸.dwg
- 车站雨篷结构施工图纸,共19张
- 门头钢雨篷施工CAD图纸,共2张
- 办公楼入口钢雨篷结构设计施工大样图
- 办公楼入口钢雨篷结构设计CAD大样图
- 主入口大门施工CAD图纸,共6份图纸
- 门式钢架结构弧形点玻式玻璃雨篷结构施工图纸
- 弧形点玻式玻璃雨篷结构CAD施工图纸
- 公司入口处雨篷节点构造详图纸cad剖面图及布置图
- 钢结构弧形雨篷结构CAD施工图纸(桁架结构)(平面布置图)
全部评论
						
							评论网友评论仅友表达个人看法,并不表明本站同意其观点,不得发布违反法律法规的内容!
						
						
 
	              	 
	              	