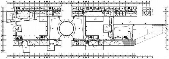
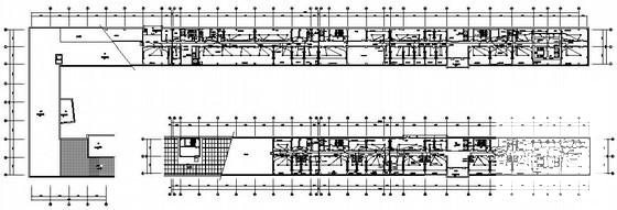
9层办公楼全套强电施工图纸(一级负荷)
- 发布时间:2021-11-30
- 评论次数:0
- 浏览次数:0
- 文件大小:8.98 MB
- 收藏次数:0
- 
								文件名称: 附件-995856798995885658688.rar 附件-995856798995885658688.rar
								办公楼全套图纸下载
							
						- 12层高级酒店全套强电设计图纸(一级负荷)
- 医院手术部强电施工图纸(一级负荷)
- 3000平米6层酒店强电施工图纸(一级负荷)
- 3层酒店大堂强电施工图纸(一级负荷)
- 19层商住楼电气全套施工图纸(一级负荷)
- 24层商住楼电气全套详施工图纸(一级负荷)
- 全套办公楼强电CAD图纸
- 16层办公楼建筑电气CAD施工图纸(一级负荷)
- 地上8层办公楼强电系统电气CAD施工图纸(一级,二级,三级负荷)
- 全套多层办公楼强电施工CAD图纸
- 医院综合病房楼电气图纸(一级负荷)
- 上3层办公楼强电CAD施工图纸(三级负荷)
- 小学地上5层办公楼强电CAD施工图纸(三级负荷)
- 两层机场航站楼电气施工图纸(一级负荷)
- 28层商住楼电气施工图纸(一级负荷)
- 25层商住楼电气施工图纸(一级负荷)
- 14层酒店电气施工图纸(一级负荷)
- 33层商住楼电气施工图纸(一级负荷)
- 5层酒店弱电系统电气CAD施工图纸(一级负荷)
- 15层商业综合楼电气CAD施工图纸(一级负荷)
全部评论
						
							评论网友评论仅友表达个人看法,并不表明本站同意其观点,不得发布违反法律法规的内容!
						
						
 
	              	 
	              	 
	              	