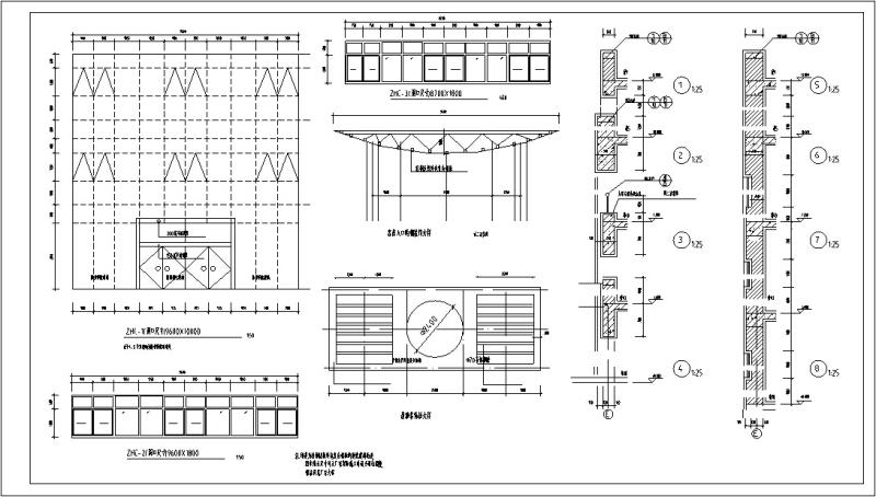
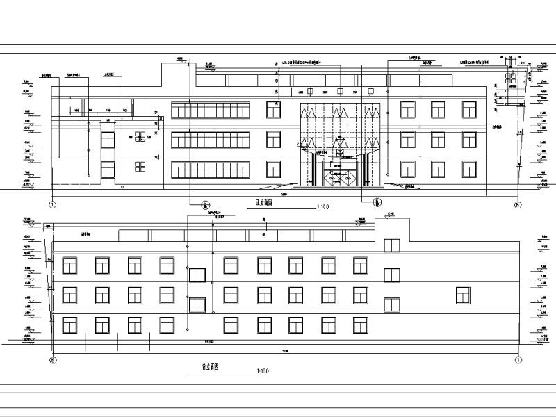
现代多层宾馆酒店建筑设计方案CAD施工图纸(钢筋混凝土结构)
- 发布时间:2023-01-23
- 评论次数:0
- 浏览次数:0
- 文件大小:2.35 MB
- 收藏次数:0
-
文件名称:
附件-995856999005856565570.dwg
相关下载
- 现代多层宾馆酒店建筑设计CAD施工图纸(钢筋混凝土结构)
- 现代多层旅社宾馆酒店建筑设计施工图纸
- 现代高层宾馆酒店建筑设计CAD施工图纸(钢筋混凝土结构)
- 后现代高层宾馆酒店建筑设计方案施工图纸CAD.dwg
- 欧式多层宾馆酒店建筑设计CAD施工图纸(框架结构)
- 多层酒店建筑设计方案CAD施工图纸(钢筋混凝土结构)
- 现代多层会所建筑设计方案施工图纸CAD.dwg
- 现代多层商业大厦建筑设计方案施工图纸CAD
- 精美现代多层宿舍建筑CAD图纸
- 框架结构3套现代高层宾馆酒店建筑设计CAD施工图纸,
- 多层宾馆酒店建筑设计施工方案大样图CAD.dwg
- 大学现代多层食堂综合楼建筑设计CAD施工图纸(钢筋混凝土结构)
- 海城商厦现代多层商业建筑设计CAD施工图纸(钢筋混凝土结构)
- 现代多层商业建筑设计方案初设初设图纸CAD
- 6套宾馆酒店建筑设计方案初设图纸/CAD施工图纸(钢筋混凝土结构)
- 5层现代风格多层级办公楼建筑设计方案文本
- 3套现代独栋餐厅建筑设计方案CAD施工图纸(钢筋混凝土结构)
- 现代幕墙式多层商业建筑施工CAD图纸
- 现代多层幕墙式商业建筑CAD施工图纸
- 现代多层工业厂房建筑施工CAD图纸
全部评论
评论网友评论仅友表达个人看法,并不表明本站同意其观点,不得发布违反法律法规的内容!
