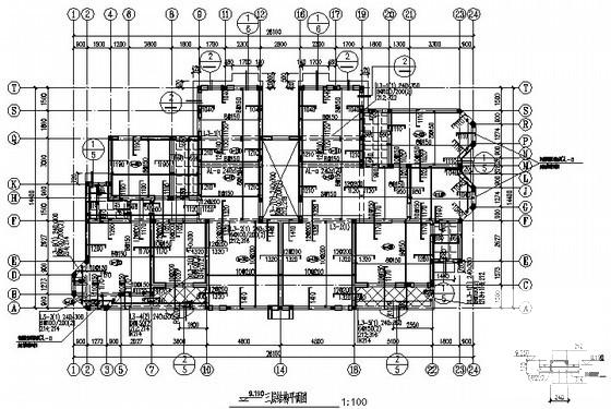
地上6层、地下1层砌体结构住宅楼结构CAD施工图纸
- 发布时间:2023-01-20
- 评论次数:0
- 浏览次数:0
- 文件大小:0.97 MB
- 收藏次数:0
-
文件名称:
附件-995879889875895985787.zip
相关下载
- 地上6层、地下1层砌体结构住宅结构CAD施工图纸
- 地下1层地上5层砌体住宅楼结构CAD施工图纸(条形基础)
- 地下1层地上5层砌体住宅结构CAD施工图纸
- 地上6层砌体结构住宅楼结构CAD施工图纸
- 地上6层砌体结构住宅楼结构CAD施工图纸
- 地上3层砌体结构住宅楼结构CAD施工图纸
- 地上单层砌体结构公厕结构CAD施工图纸
- 地上61层住宅砌体结构CAD施工图纸
- 地上3层砌体结构住宅楼结构CAD施工图纸(6度抗震)(柱下独立基础)
- 地下1层地上18层框剪住宅楼结构CAD施工图纸
- 地下1层地上13层框剪住宅楼结构CAD施工图纸
- 砌体结构住宅楼结构CAD施工图纸
- 3层砌体结构住宅楼结构CAD施工图纸(地下室平面图)
- 地上18层地下1层剪力墙住宅楼结构图纸
- 地下1层地上33层剪力墙住宅楼结构CAD图纸
- 地上单层砌体结构环卫工程结构CAD施工图纸
- 地上6层砌体结构办公楼结构CAD施工图纸
- 地上5层砌体结构宿舍楼结构CAD施工图纸
- 地上2层砌体结构办公楼结构CAD施工图纸
- 地上5层砌体结构宿舍楼结构CAD施工图纸(桩基础)
全部评论
评论网友评论仅友表达个人看法,并不表明本站同意其观点,不得发布违反法律法规的内容!
