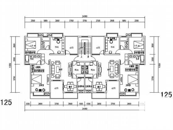
多层板式双花园住宅楼建筑户型CAD图纸
- 发布时间:2023-01-20
- 评论次数:0
- 浏览次数:0
- 文件大小:0.06 MB
- 收藏次数:0
-
文件名称:
附件-995886698509575886955.rar
相关下载
- 多层板式住宅楼户型CAD图纸(板式、中等户型)(建筑面积)
- 多层住宅楼复式户型建筑CAD图纸(板式、中等户型)
- 多层、小高层板式住宅楼户型平面图纸(电梯直接入户、带入户花园)
- 花园住宅区多层板式户型平面CAD图纸
- 板式多层单户户型CAD图纸
- 板式多层单户户型CAD图纸
- 板式多层单户户型CAD图纸
- 板式多层单户户型CAD图纸
- 板式多层单户户型CAD图纸
- 板式多层单户户型CAD图纸
- 板式多层单户户型CAD图纸
- 多层、小高层板式住宅楼户型图纸(南梯、、中等户型)
- 板式多层一梯二户建筑CAD图纸户型图纸(中等户型、)
- 31个板式多层、高层户型平面图纸.dwg
- 多层板式顶层复式住宅户型CAD图纸(135)
- 多层板式住宅户型CAD图纸(84/77)
- 板式多层带电梯住宅户型CAD图纸(133/133)
- 多层板式住宅大户型平面CAD图纸
- 板式多层有跃层单户户型CAD图纸
- 多层板式顶层复式住宅户型CAD图纸(115)
全部评论
评论网友评论仅友表达个人看法,并不表明本站同意其观点,不得发布违反法律法规的内容!
