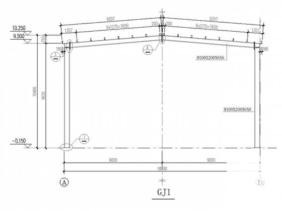
18米跨煤厂房结构CAD施工图纸(建施)(系统布置图)
- 发布时间:2023-01-18
- 评论次数:0
- 浏览次数:0
- 文件大小:0.68 MB
- 收藏次数:0
- 
								文件名称: 附件-995878999580695997558.zip 附件-995878999580695997558.zip
								相关下载
							
						- 18米跨单层钢结构排架厂房结构CAD施工图纸(建施)(平面布置图)
- 36米跨混凝土柱钢屋架厂房结构CAD施工图纸(建施)(平面布置图)
- 18米跨单层钢结构排架厂房结构CAD施工图纸(建施)
- 高低跨、带气楼门式刚架厂房结构CAD施工图纸(建施)
- 156米跨独立基础门式刚架厂房结构CAD施工图纸(建施)
- 单层钢结构门式刚架厂房(30米跨、含建施)(抗震设防类别)
- 52米跨独立基础门式刚架厂房结构CAD施工图纸(建施)(平面布置图)
- 25米跨带吊车门式刚架厂房结构CAD施工图纸(8度抗震含建施)(平面布置图)
- 30m跨单层门式钢架结构厂房CAD施工图纸(建施)(基础平面图)
- 60米跨,204米长带夹层门式刚架厂房CAD施工图纸(建施)(单层钢结构)
- 15米四连跨单层排架厂房结构CAD施工图纸(带吊车含建施)
- 15米四连跨单层排架厂房结构CAD施工方案图纸(带吊车含建施)
- 独立基础40米跨门式刚架厂房结构CAD施工图纸(建施)(平面布置图)
- 24米跨门式刚架厂房结构CAD施工图纸(建施)(平面布置图)
- 40米跨门式刚架单层厂房结构CAD施工图纸(建施)(平面布置图)
- 48米×69米门式刚架厂房结构CAD施工图纸(建施)(平面布置图)
- 小学公厕砖混结构CAD施工图纸(建施)(平面布置图)
- 单层轻钢门式刚架结构厂房结构施工图纸(建施、电气)
- 48米轻钢结构厂房结构CAD施工图纸(建施)
- 18m跨钢结构厂房(带吊车)结构CAD图纸(系统布置图)
全部评论
						
							评论网友评论仅友表达个人看法,并不表明本站同意其观点,不得发布违反法律法规的内容!
						
						
 
	              	 
	              	 
	              	 
	              	 
	              	