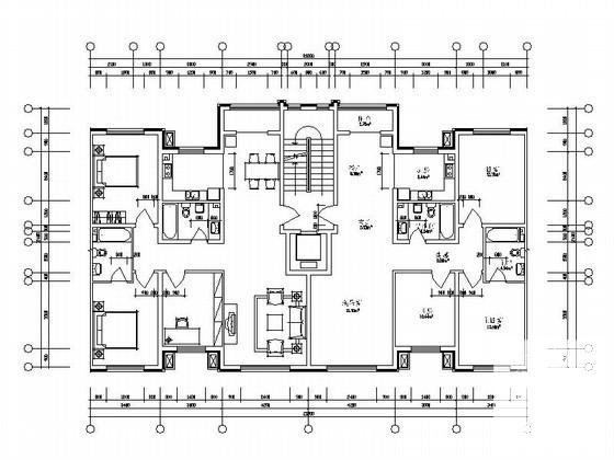
板式小高层住宅楼户型图纸(大户型)(三居室)
- 发布时间:2023-01-18
- 评论次数:0
- 浏览次数:0
- 文件大小:0.34 MB
- 收藏次数:0
- 
								文件名称: 附件-995887799790555586505.rar 附件-995887799790555586505.rar
								相关下载
							
						- 多层、小高层板式住宅楼户型图纸(南梯、、中等户型)
- 高层大户型图纸集
- 多层板式住宅大户型平面CAD图纸
- 小高层(8层-15层)豪宅大户型设计图纸.
- 板式高层底商一梯二户大户型平面CAD图纸
- 多层、小高层板式住宅楼户型图纸(66平方米).dwg
- 小高层板式住宅楼户型图纸(120、140平方米).dwg
- 板式高层一梯两户有跃层建筑CAD图纸户型图纸(大户型)
- 多层一梯二户有跃层户型图纸(大户型、板式)
- 板式多层三居室户型CAD图纸(124平方米)
- 高层住宅楼CAD图纸大户型图纸集
- 小高层户型图纸
- 板式小高层建筑CAD图纸
- 高层户型图纸-小高层点式户型.dwg
- 小高层板式住宅楼建筑CAD图纸户型图纸(南、北两梯)
- 小高层板式住宅楼户型图纸(120、140、170平方米)(三室二厅)
- 多层、小高层板式住宅楼户型平面图纸(电梯直接入户、带入户花园)
- 多层与小高层户型设计CAD图纸(板式和塔式).dwg
- 板式阶梯状户型平面图纸(适合多层、小高层).dwg
- 小高层板式住宅户型图纸(120、140、170平方米)
全部评论
						
							评论网友评论仅友表达个人看法,并不表明本站同意其观点,不得发布违反法律法规的内容!
						
						
