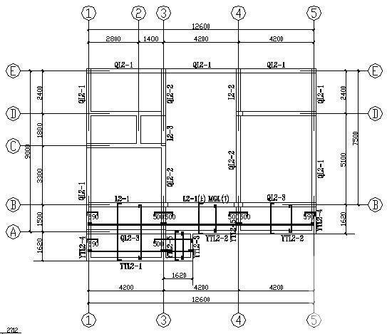
2层砖混结构别墅结构CAD施工图纸(6度抗震)
- 发布时间:2023-01-18
- 评论次数:0
- 浏览次数:0
- 文件大小:0.43 MB
- 收藏次数:0
- 
								文件名称: 附件-995879558885560887567.rar 附件-995879558885560887567.rar
								相关下载
							
						- 独立基础砖混结构私人别墅结构CAD施工图纸(6度抗震)
- 2层桩基础砖混结构别墅结构CAD施工图纸(6度抗震)
- 2层砖混结构别墅结构CAD施工图纸(6度抗震)
- 砖混别墅结构CAD图纸
- 砖混别墅结构CAD图纸
- 砖混结构别墅施工建筑结构CAD图纸
- 砖混结构别墅结构CAD施工图纸.dwg
- 6度抗震2层砖混结构别墅结构CAD施工图纸(建施)(楼梯平面图)
- 砖混结构3层别墅建筑施工CAD图纸
- 砖混结构别墅CAD施工方案图纸
- 砖混别墅结构CAD施工图纸
- 2层砖混别墅结构CAD施工图纸
- 4层砖混别墅结构CAD施工图纸
- 砖混别墅结构CAD施工图纸.dwg
- 砖混结构独栋别墅建筑施工CAD图纸
- 砖混乡间别墅结构CAD施工图纸
- 2层砖混结构别墅结构CAD施工方案图纸(双拼别墅条形基础)
- 两层砖混结构别墅CAD图纸
- 砖混别墅建筑和结构CAD图纸
- 2层砖混别墅结构CAD图纸
全部评论
						
							评论网友评论仅友表达个人看法,并不表明本站同意其观点,不得发布违反法律法规的内容!
						
						
 
	              	 
	              	 
	              	