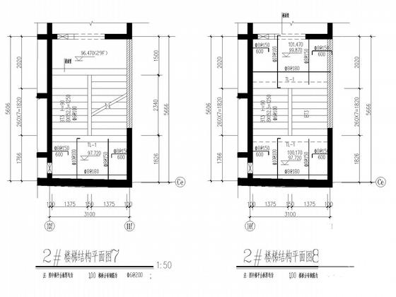
29层圆弧形框筒公寓式写字楼结构CAD施工图纸
- 发布时间:2023-01-17
- 评论次数:0
- 浏览次数:0
- 文件大小:1.84 MB
- 收藏次数:0
-
文件名称:
附件-995876598786577588777.rar
相关下载
- 24层框筒商场及公寓式办公楼结构施工图纸(预应力混凝土管桩)
- 23层筒中筒结构公寓楼结构CAD施工图纸
- 框架—核心筒公寓部分结构施工图纸.
- 13层框剪结构酒店式公寓结构设计CAD施工图纸
- 高级写字楼及酒店式公寓空调通风防排烟设计(甲院出品)
- 著名地产公司27层框筒结构公寓楼结构图纸(变截面梁)
- 21层框筒结构CAD施工图纸
- 圆弧形门卫结构CAD施工图纸
- 华润中心写字楼框架-核心筒超限结构抗震性能设计论文
- 框筒结构设计说明
- 框筒结构设计说明
- 钢框筒-支撑结构设计说明
- 框筒结构设计说明.dwg
- 框筒结构设计说明.dwg
- 混凝土结构设计说明(框筒、框架、框剪结构)
- 40层框架核心筒结构单体写字楼结构CAD施工图纸(152米).dwg
- 2栋18层框剪结构商业写字楼结构CAD施工图纸
- 框架核心筒结构国际公寓连体高层结构CAD施工图纸
- 54层混凝土芯筒-钢框筒金融中心裙房钢骨部分结构CAD施工图纸
- 钢架圆弧形花架施工详细设计CAD图纸
全部评论
评论网友评论仅友表达个人看法,并不表明本站同意其观点,不得发布违反法律法规的内容!
