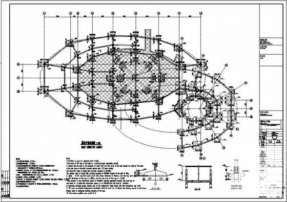
世博会外国场馆结构设计施工图纸
- 发布时间:2021-11-30
- 评论次数:0
- 浏览次数:0
- 文件大小:0.86 MB
- 收藏次数:0
-
文件名称:
附件-995877859987559577785.rar
世博会场馆设计下载
- 世博会外国场馆结构设计CAD施工图纸
- 世博会场馆结构设计说明.pdf
- 世博会外国馆结构CAD施工图纸
- 世博会外国馆结构CAD施工图纸.dwg
- 世博会3层场馆空调通风CAD施工图纸
- 世博会5层场馆空调通风施工CAD图纸
- 世博会场馆BA系统控制原理CAD图纸
- 门式刚架结构世博会场馆结构设计施工图纸
- 两层门式刚架结构世博会场馆结构CAD施工图纸
- 世博会场馆钢桁架结构节点构造CAD详大样图.dwg
- 两层门式刚架结构世博会场馆结构CAD施工图纸(筏形基础)
- 世博会馆结构设计CAD施工图纸
- 世博会馆施工CAD图纸
- 博览城场馆结构设计方案图纸
- 世博会意大利馆施工CAD图纸
- 世博会万科施工CAD图纸
- 世博会沙特馆建筑施工CAD图纸
- 世博会厄立特里亚施工CAD图纸
- 世博会波兰馆施工CAD图纸
- 世博会爱尔兰馆施工CAD图纸
全部评论
评论网友评论仅友表达个人看法,并不表明本站同意其观点,不得发布违反法律法规的内容!
