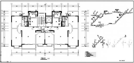
11层大学专家公寓给排水设计CAD施工图纸
- 发布时间:2023-01-09
- 评论次数:0
- 浏览次数:0
- 文件大小:0.73 MB
- 收藏次数:0
-
文件名称:
附件-995860557088655087766.rar
相关下载
- 11层大学专家公寓给排水CAD施工方案图纸
- 2号专家公寓
- 专家公寓采暖设计cad施工图纸
- 专家公寓绿化平面CAD图纸
- 大学单身公寓给排水施工图纸
- 工厂专家楼给排水图纸
- 工厂专家楼给排水设计CAD图纸.dwg
- 大学公寓楼
- 专家公寓采暖设计施工图纸和平面布置图
- 大学高级学生公寓给排水设计CAD施工大样图.dwg
- 大学高级学生公寓给排水成套设计图纸.dwg
- 爱丁堡公寓基坑支护结构设计CAD大样图(专家评审通过)
- 2层异形柱框架结构专家公寓施工图纸
- 水上运动训练基地专家公寓楼建筑施工CAD图纸
- 25层大学研究生公寓给排水CAD施工图纸
- 14层大学研究生公寓给排水施工大样图.dwg
- 大学学生公寓建筑设计CAD图纸
- 国内15层大学生公寓给排水CAD图纸
- 高级公寓给排水设计施工说明
- 南方大学城公寓建筑CAD施工图纸
全部评论
评论网友评论仅友表达个人看法,并不表明本站同意其观点,不得发布违反法律法规的内容!
