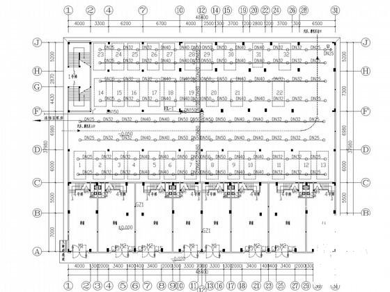
8层商品住宅楼小区建筑给排水消防CAD施工图纸(总平面布置图)
- 发布时间:2023-01-09
- 评论次数:0
- 浏览次数:0
- 文件大小:1.45 MB
- 收藏次数:0
-
文件名称:
附件-995860988977989956055.rar
相关下载
- 小区总平面照明布置图纸.
- 小区给排水总平面图纸.
- 小区给排水总平面CAD图纸
- 小区给排水总平面CAD图纸
- 小区污水管道总平面布置图纸
- 小区公园总平面布置图纸.dwg
- 小区室外消防管网总CAD平面图图纸
- 小区室外给排水总平面CAD施工图纸_总平面高程图.dwg
- 小区给排水总平面CAD施工图纸
- 小区给排水总平面CAD施工图纸.dwg
- 8层商品住宅小区建筑给排水消防CAD施工大样图
- 住宅小区给排水总平面图纸
- 小区给排水总CAD平面图
- 地块小区规划总平面
- 花园小区规划总平面
- 方形地块小区规划建筑总平面CAD图纸
- 小区建筑总平面图纸绘制方法
- 小区室外给排水总CAD图纸
- 小区室外给排水及消防总平面CAD图纸
- 小区电气总平面CAD图纸
全部评论
评论网友评论仅友表达个人看法,并不表明本站同意其观点,不得发布违反法律法规的内容!
