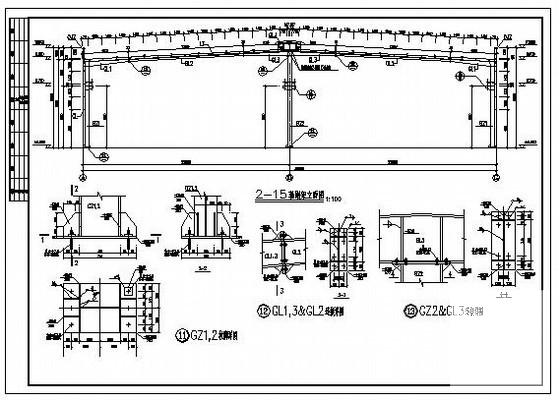
单层门式刚架厂房结构设计方案CAD图纸
- 发布时间:2023-01-04
- 评论次数:0
- 浏览次数:0
- 文件大小:0.85 MB
- 收藏次数:0
-
文件名称:
附件-995878897509776689755.rar
相关下载
- 单层门式刚架结构体系厂房结构CAD图纸
- 单层门式刚架结构油田厂房结构CAD图纸
- 单层门式刚架结构工业厂房节点详图纸
- 门式刚架结构单层厂房建筑施工图纸
- 单层门式刚架厂房结构CAD施工图纸
- 单层门式刚架厂房结构CAD施工图纸
- 单层门式刚架钢结构厂房结构设计方案CAD图纸
- 单层门式刚架钢结构厂房转换图
- 单层钢结构门式刚架厂房(21米跨)
- 带夹层单层钢结构门式刚架厂房
- 单层门式刚架厂房结构设计方案CAD图纸
- 两跨单层门式刚架厂房结构设计方案CAD图纸
- 三跨单层门式刚架厂房结构设计方案CAD图纸
- 单层门式刚架厂房结构设计方案CAD图纸
- 跨度24米单层门式刚架厂房结构设计方案CAD图纸
- 单层门式刚架厂房结构设计方案CAD图纸(7度抗震)
- 门式刚架厂房结构设计施工图纸(单层厂房,共7张)
- 门式刚架轻钢结构厂房
- 18米跨单层门式刚架钢结构厂房结构施工图纸
- 20米跨单层门式刚架钢结构厂房结构施工图纸
全部评论
评论网友评论仅友表达个人看法,并不表明本站同意其观点,不得发布违反法律法规的内容!
