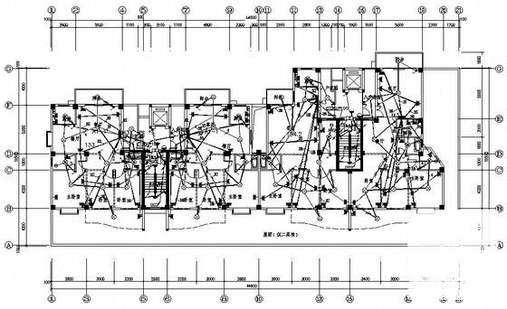
15层钢筋混凝土结构普通高层住宅楼电气CAD施工图纸
- 发布时间:2023-01-04
- 评论次数:0
- 浏览次数:0
- 文件大小:0.74 MB
- 收藏次数:0
- 
								文件名称: 附件-995856695579888077887.rar 附件-995856695579888077887.rar
								相关下载
							
						- 15层普通高层住宅楼电气CAD施工图纸(钢筋混凝土结构)()
- 普通高层住宅建筑电气CAD施工图纸
- 5层钢筋混凝土结构普通住宅楼电气CAD施工图纸
- 5层普通住宅楼电气CAD施工图纸(钢筋混凝土结构)()
- 多层及高层钢筋混凝土结构住宅楼电气施工图纸
- 小区高层钢筋混凝土结构住宅楼全套电气施工图纸
- 高层钢筋混凝土结构住宅楼电气施工图纸
- 高层住宅楼电气CAD施工图纸(钢筋混凝土结构)
- 高层住宅楼电气CAD施工图纸(钢筋混凝土结构)
- 高层住宅楼电气CAD施工图纸(钢筋混凝土结构)
- 高层住宅楼电气CAD施工图纸(钢筋混凝土结构)
- 高层住宅楼电气CAD施工图纸(钢筋混凝土结构)
- 高层钢筋混凝土结构住宅楼电气施工详图
- 高层钢筋混凝土结构住宅楼电气施工图平面图
- 高层钢筋混凝土结构住宅楼电气施工图
- 26层钢筋混凝土结构高层住宅楼电气施工图
- 二类普通高层住宅楼电气CAD施工图纸(火灾自动报警)
- 高层钢筋混凝土结构住宅楼厨房电气系统图纸(人防)
- 11层钢筋混凝土结构普通住宅楼强弱电CAD施工图纸(人防)
- 普通高层住宅给排水CAD施工图纸
全部评论
						
							评论网友评论仅友表达个人看法,并不表明本站同意其观点,不得发布违反法律法规的内容!
						
						
 
	              	 
	              	 
	              	