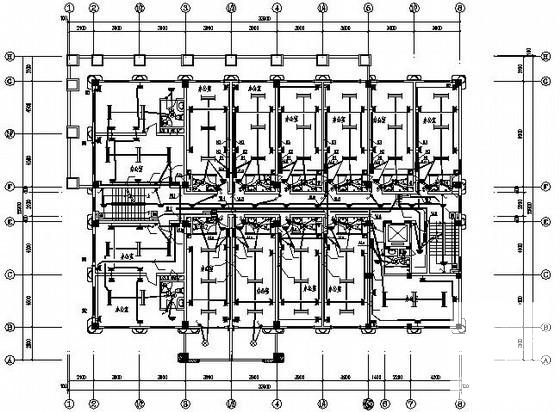
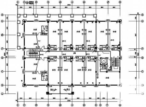
5层钢筋混凝土结构会所电气CAD施工图纸(弱电设计说明)
- 发布时间:2023-01-03
- 评论次数:0
- 浏览次数:0
- 文件大小:1.16 MB
- 收藏次数:0
-
文件名称:
附件-995856779566859908788.zip
相关下载
- 会所弱电设计CAD图纸
- 6层商业会所强弱电CAD施工图纸(水消防)(电气设计说明)
- 6层商业会所强弱电CAD施工大样图(水消防)(钢筋混凝土结构)()
- 上3层会所电气CAD施工图纸(电气设计说明)
- 地上两层钢筋混凝土结构会所电气设计CAD图纸
- 3层娱乐休闲会所强电系统CAD施工图纸(电气设计说明)
- 3层钢筋混凝土结构中学教学楼弱电CAD施工图纸(电气设计说明)
- 七万平25层钢筋混凝土结构住宅楼强弱电CAD施工图纸(电气设计说明)(火灾自动报警)
- 地上9层钢筋混凝土结构住宅楼强弱电CAD施工图纸(车库)(电气设计说明)
- 32层钢筋混凝土结构住宅楼强弱电CAD施工图纸(人防)(电气设计说明)
- 17层钢筋混凝土结构住宅楼强弱电CAD施工图纸(人防)(电气设计说明)
- 弱电施工图纸设计说明
- 高档别墅会所电气CAD施工图纸(钢筋混凝土结构)(TN-C-S)
- 5层豪华私人会所电气CAD施工图纸(钢筋混凝土结构)(TN-C-S)
- 4层知名商务会所电气CAD施工图纸(钢筋混凝土结构)(TN-S)
- 3层会所其他弱电设计CAD图纸
- 3层会所其他弱电设计CAD图纸
- 小区会所电气CAD图纸
- 休闲会所电气图纸.dwg
- 5层钢筋混凝土结构住宅楼电气CAD施工图纸(电气设计说明)
全部评论
评论网友评论仅友表达个人看法,并不表明本站同意其观点,不得发布违反法律法规的内容!
