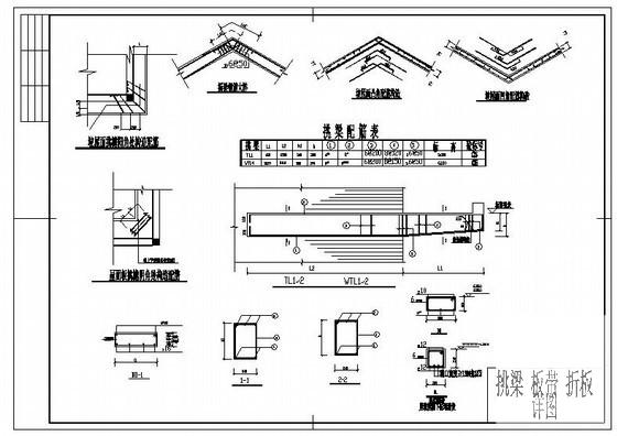
两层框架结构别墅结构设计施工详图平面图
- 发布时间:2021-11-30
- 评论次数:0
- 浏览次数:0
- 文件大小:0.13 MB
- 收藏次数:0
-
文件名称:
附件-995876997799950858775.rar
两层别墅结构设计下载
- 别墅区两层别墅建筑图纸
- 两层欧式别墅全套建筑结构设计施工图纸
- 两层框架结构别墅结构设计施工图纸
- 两层异形柱框架结构别墅结构设计施工图纸
- 两层砖混结构条形基础别墅结构设计施工图纸
- 两层异型柱框架结构别墅结构设计施工图纸
- 两层框架结构别墅结构设计施工图纸(独立基础)
- 两层坡屋顶框架别墅结构设计全套施工图纸
- 两层框架坡屋顶别墅结构设计施工图纸
- 两层砖混别墅结构设计说明
- 两层带阁楼砖混别墅结构设计图纸
- C25两层别墅结构设计图纸
- 两层框架别墅结构设计CAD施工图纸
- 两层欧式别墅建筑结构设计CAD图纸
- 两层砖混别墅结构设计CAD图纸
- 两层砖混别墅结构设计CAD图纸
- 两层框架别墅结构设计说明(2012年)
- 两层砖混别墅结构设计说明
- 上两层框架结构别墅结构设计CAD图纸.dwg
- 两层砌体结构别墅结构设计CAD施工图纸.dwg
全部评论
评论网友评论仅友表达个人看法,并不表明本站同意其观点,不得发布违反法律法规的内容!
