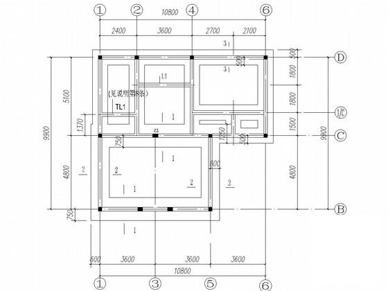
3层砌体结构条形基础住宅楼结构CAD施工图纸(平面布置图)
- 发布时间:2022-11-27
- 评论次数:0
- 浏览次数:0
- 文件大小:0.3 MB
- 收藏次数:0
-
文件名称:
附件-995879779557877980765.rar
相关下载
- 5层条形基础砌体结构住宅楼结构CAD施工图纸(平面布置图)
- 6层条形基础砌体结构住宅楼结构CAD施工图纸(平面布置图)
- 6层条形基础砌体结构住宅楼结构CAD施工图纸(平面布置图)
- 6层砌体结构小区住宅楼结构CAD施工图纸(条形基础)(平面布置图)
- 条形基础单层砌体结构辅助用房结构CAD施工图纸(7度抗震)(平面布置图)
- 4层砌体结构条形基础公寓结构CAD施工图纸(7度抗震)(平面布置图)
- 两层砌体结构条形基础宿舍楼结构CAD施工图纸(平面布置图)
- 4层砌体结构条形基础别墅结构CAD施工图纸(7度抗震)(平面布置图)
- 2层砌体结构办公楼结构CAD施工图纸(条形基础)(平面布置图)
- 3层砌体结构办公楼结构CAD施工图纸(条形基础)(平面布置图)
- 砌体结构、条形基础三栋公租房结构CAD施工图纸(平面布置图)
- 2层砌体结构别墅结构CAD施工图纸(墙下条形基础)(平面布置图)
- 4层条形基础砌体办公楼结构CAD施工图纸(平面布置图)
- 6层条形基础砌体公租房结构CAD施工图纸(平面布置图)
- 5层带阁楼砌体宿舍结构CAD施工图纸(条形基础)(平面布置图)
- 自建3层砌体别墅建筑结构CAD施工图纸(条形基础)(平面布置图)
- 两套5层公租房砌体结构CAD施工图纸(条形基础)(平面布置图)
- 6层砌体结构条形基础住宅楼结构设计施工图纸
- 4层条形基础砌体结构住宅楼结构设计施工图纸
- 6层条形基础砌体结构住宅楼结构设计施工图纸
全部评论
评论网友评论仅友表达个人看法,并不表明本站同意其观点,不得发布违反法律法规的内容!
