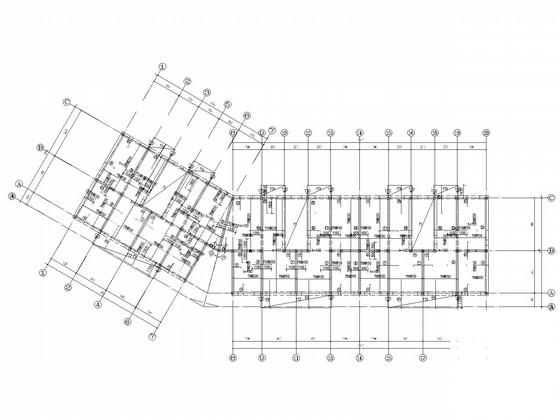
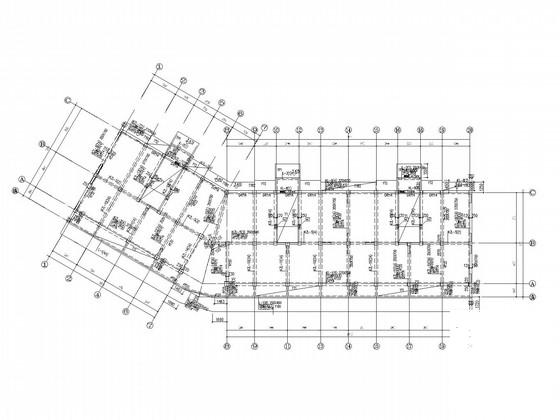
6层带车库住宅楼底框结构CAD施工图纸
- 发布时间:2022-11-27
- 评论次数:0
- 浏览次数:0
- 文件大小:0.99 MB
- 收藏次数:0
- 
								文件名称: 附件-995876796595958880895.zip 附件-995876796595958880895.zip
								相关下载
							
						- 住宅楼底框结构CAD图纸
- 30层带地下车库框剪住宅楼结构CAD施工图纸
- 6层带车库住宅底框结构CAD施工方案图纸
- 30层带地下车库框剪住宅结构CAD施工图纸
- 22层带地下车库住宅框剪结构CAD施工图纸
- 带阁楼底框剪力墙住宅结构CAD施工图纸
- 住宅楼底框结构施工CAD图纸,共8张
- 带车库住宅结构CAD图纸
- 7层住宅楼底框砖混结构施工方案大样图(CAD)
- 多层住宅楼底下车库电气CAD施工图纸.dwg
- 带地下车库17层框支剪力墙结构住宅楼结构CAD施工图纸
- 带地下车库18层框剪住宅楼结构CAD施工图纸(桩基础)
- 22层带地下车库住宅楼框剪结构图纸(梁平法施工图)
- 带地下车库17层框支剪力墙结构CAD施工图纸
- 独立基础5层商住楼底框抗震墙结构CAD施工图纸
- 6层办公楼底框结构施工方案图纸(CAD,16张)
- 5层商住楼底框抗震墙结构CAD施工图纸
- 3层办公楼底框结构CAD施工图纸
- 6层办公楼底框结构设计CAD图纸
- 7层框架结构住宅楼(带车库)结构CAD施工图纸
全部评论
						
							评论网友评论仅友表达个人看法,并不表明本站同意其观点,不得发布违反法律法规的内容!
						
						
 
	              	 
	              	 
	              	 
	              	 
	              	