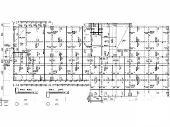
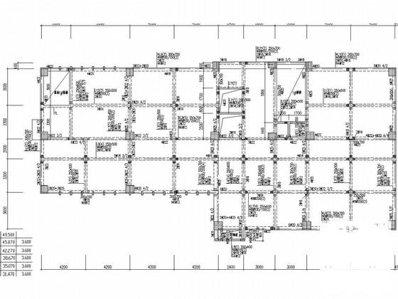
13层框剪结构SOHO项目办公楼结构施工图纸
- 发布时间:2022-11-27
- 评论次数:0
- 浏览次数:0
- 文件大小:4.76 MB
- 收藏次数:0
- 
								文件名称: 附件-995876797875558877787.rar 附件-995876797875558877787.rar
								相关下载
							
						- 多层框剪结构办公楼施工CAD图纸
- 28层框剪结构高层住宅楼项目结构CAD施工图纸
- 框剪结构CAD图纸
- 框剪结构医院门诊楼项目基坑清槽施工方案_CAD
- 框剪结构商场结构CAD图纸
- 框剪结构总说明
- 8层框剪结构办公楼结构施工图纸
- 26层框剪结构生活大厦办公楼结构CAD施工图纸2015
- 10层框剪结构办公楼结构CAD施工图纸(桩基础)
- 31层框剪结构办公楼结构CAD施工图纸
- 15层框剪结构办公楼结构设计CAD施工图纸
- 8层框剪结构办公楼结构CAD施工图纸
- 15层框剪结构办公楼结构施工方案图纸(CAD、14张)
- 8层框剪结构办公楼结构CAD施工图纸
- 4层框剪结构办公楼建筑结构CAD施工图纸
- 国内8层框剪结构办公楼结构施工CAD图纸_人防甲类
- 框剪结构宾馆结构CAD施工图纸
- 框剪大厦结构CAD图纸
- 框剪小高层结构CAD图纸
- 框剪小高层结构CAD图纸
全部评论
						
							评论网友评论仅友表达个人看法,并不表明本站同意其观点,不得发布违反法律法规的内容!
						
						
 
	              	 
	              	 
	              	 
	              	 
	              	