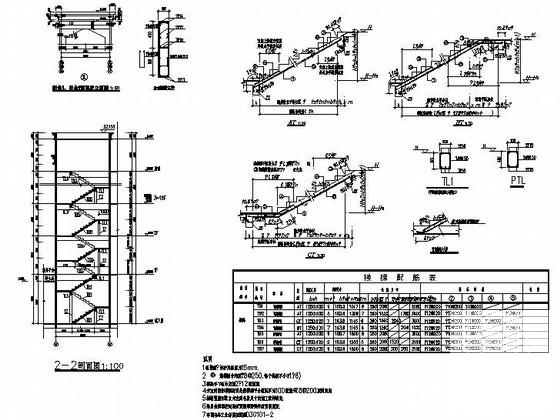
非抗震区16层剪力墙住宅楼结构设计图纸(梁平法施工图)
- 发布时间:2022-11-23
- 评论次数:0
- 浏览次数:0
- 文件大小:1.5 MB
- 收藏次数:0
-
文件名称:
附件-995876996885678887889.rar
相关下载
- 非框架梁平法构造详图纸
- 非框架梁平法构造CAD详图纸
- 非框架梁平法构造详图纸cad
- 非框架梁平法构造详图纸cad
- 非抗震区16层剪力墙住宅结构设计CAD施工图纸
- 一套非抗震区2层框架厂房结构设计说明
- 非抗震区2层框架厂房结构设计说明_CAD
- 17层剪力墙住宅楼结构设计图纸(梁平法配筋图)
- 26层剪力墙住宅楼结构设计图纸(梁平法配筋图)
- 16层非抗震纯剪力墙住宅楼结构设计图纸(梁平法施工图)
- 梁平法构造说明cad
- 7度抗震区底框结构住宅结构设计图纸(梁平法施工图)
- 16层框架剪力墙住宅楼结构CAD施工图纸(梁平法配筋图)
- 17层纯剪力墙结构住宅楼结构CAD施工图纸(梁平法配筋图)
- 33层剪力墙住宅楼结构CAD施工图纸(桩基础)(梁平法配筋图)
- 26层剪力墙结构住宅楼结构CAD施工图纸(梁平法配筋图)
- 7层框架结构住宅楼结构设计施工图纸(梁平法配筋图)
- 17层剪力墙结构住宅楼结构设计CAD施工图纸(筏形基础)(梁平法配筋图)
- 小高层剪力墙住宅楼结构设计CAD施工图纸(梁平法配筋图)
- 框支剪力墙结构27层住宅楼结构设计图纸(梁平法配筋图)
全部评论
评论网友评论仅友表达个人看法,并不表明本站同意其观点,不得发布违反法律法规的内容!
