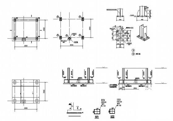
3层医院钢结构电梯结构设计施工图纸
- 发布时间:2021-11-30
- 评论次数:0
- 浏览次数:0
- 文件大小:0.37 MB
- 收藏次数:0
- 
								文件名称: 附件-995877755955956956979.rar 附件-995877755955956956979.rar
								电梯钢结构施工图纸下载
							
						- 钢结构电梯详图纸
- 电梯钢结构施工图纸.
- 钢结构电梯大样图纸2018
- 钢结构电梯详图纸cad
- 钢结构电梯井道结构CAD施工图纸()
- 酒店观光电梯钢结构CAD施工图纸()
- 观光电梯钢结构CAD施工图纸
- 宾馆电梯钢结构CAD施工图纸
- 钢结构电梯井架设计CAD施工图纸
- 观光电梯钢结构CAD施工图纸.dwg
- 多层商场楼梯电梯扶梯钢结构节点详图纸
- 电梯剖面及部分钢结构节点详图纸
- 电梯层门入口钢结构节点详图纸
- 电梯井钢结构做法节点构造设计详图纸
- 观光电梯围护钢结构CAD图纸
- 观光电梯钢结构设计CAD图纸
- 观光电梯钢结构设计总说明
- 电梯井钢结构设计说明
- 电梯井钢结构设计说明.dwg
- 钢结构电梯井道CAD详大样图.dwg
全部评论
						
							评论网友评论仅友表达个人看法,并不表明本站同意其观点,不得发布违反法律法规的内容!
						
						
 
	              	 
	              	 
	              	