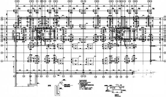
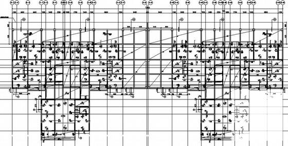
地上13层地下1层剪力墙结构人防指挥中心办公楼结构设计图纸(梁平法施工图)
- 发布时间:2022-11-18
- 评论次数:0
- 浏览次数:0
- 文件大小:1.86 MB
- 收藏次数:0
- 
								文件名称: 附件-995876788898585505757.zip 附件-995876788898585505757.zip
								相关下载
							
						- 地上13层地下1层人防指挥中心办公楼
- 剪力墙人防地下室结构CAD施工图纸(梁平法配筋图)
- 人防指挥中心办公楼剪力墙结构设计说明
- 人防指挥中心办公楼剪力墙结构CAD施工图纸
- 人防指挥中心办公楼剪力墙结构设计说明.dwg
- 5层框架结构办公楼人防地下室结构CAD施工图纸(梁平法配筋图)
- 地下1层地上8层框架综合楼结构CAD施工图纸(梁平法配筋图)
- 框架剪力墙地下室人防结构CAD施工图纸(7度抗震)(梁平法配筋图)
- 地下1层车库框架结构CAD施工图纸(梁平法配筋图)
- 地下商场框架结构体系CAD施工图纸(梁平法配筋图)
- 俱乐部框架地下车库结构设计CAD施工图纸(桩基础)(梁平法配筋图)
- 公安局办公楼结构CAD施工图纸(梁平法配筋图)
- 办公楼建筑结构设计方案图纸(梁平法CAD施工图).dwg
- 梁平法构造说明cad
- 大型空心楼盖地下车库结构设计图纸(梁平法配筋图)
- 17层剪力墙住宅楼结构设计图纸(梁平法配筋图)
- 26层剪力墙住宅楼结构设计图纸(梁平法配筋图)
- 公司5层框架办公楼结构设计图纸(梁平法配筋图)
- ]7层框架办公楼结构设计CAD图纸(梁平法配筋图)
- 框架办公楼及门卫结构设计CAD图纸(梁平法配筋图)
全部评论
						
							评论网友评论仅友表达个人看法,并不表明本站同意其观点,不得发布违反法律法规的内容!
						
						
 
	              	 
	              	 
	              	