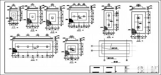
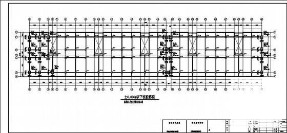
6度区6层框架结构住宅楼结构设计方案CAD施工图纸
- 发布时间:2022-11-18
- 评论次数:0
- 浏览次数:0
- 文件大小:1.79 MB
- 收藏次数:0
-
文件名称:
附件-995876659077976675097.rar
相关下载
- 七度区3层框架结构宾馆毕业设计方案
- 8度区7层住宅楼钢框架结构施工图纸
- 地上4层框架结构C区商业区结构施工图纸
- 地上4层框架结构E区商业区结构施工图纸
- 地上4层框架结构B区商业区结构施工图纸
- 地上4层框架结构D区商业区结构CAD施工图纸
- 7°区五框架结构住宅毕业设计方案计算书及建筑施工CAD图纸.dwg
- 框架结构住宅楼毕业设计方案(结构图纸)
- 12层框架结构住宅楼结构设计方案CAD图纸
- 8层框架结构住宅楼结构设计方案CAD图纸
- 框架结构商业住宅楼结构设计方案CAD图纸
- 6层框架结构住宅楼结构设计方案CAD图纸
- 6层框架结构住宅楼结构设计方案CAD图纸
- 12层框架结构住宅楼结构设计方案CAD图纸
- 4层框架结构住宅楼结构设计方案CAD图纸
- 8层框架结构住宅楼结构设计方案CAD图纸
- 安置区住宅结构设计方案图纸
- 6层框架结构住宅楼毕业设计方案施工图
- 6度区6层框架结构住宅楼
- 4层框架结构路桥区预备役营房建筑设计方案
全部评论
评论网友评论仅友表达个人看法,并不表明本站同意其观点,不得发布违反法律法规的内容!
