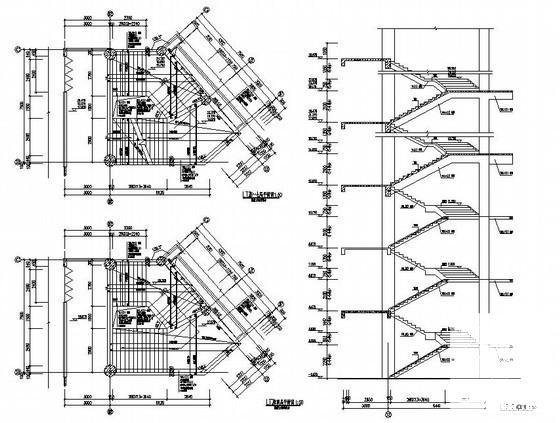
7层大学教学楼结构设计方案CAD图纸
- 发布时间:2022-11-17
- 评论次数:0
- 浏览次数:0
- 文件大小:5.26 MB
- 收藏次数:0
-
文件名称:
附件-995876977558607699886.rar
相关下载
- 大学附属中学教学楼毕业设计方案
- 国内市大学教学楼毕业设计方案(竖向荷载作用)
- 4层大学教学楼建筑设计方案.dwg
- 大学建筑系教学楼设计方案文本cad平面图
- 大学框架教学楼建筑结构CAD图纸
- 大学框架教学楼结构CAD图纸
- CAD大学平面设计方案
- 大学总体景观概念设计方案
- 工业大学附属中学教学楼毕业设计方案(建筑设计CAD图纸)
- 大学6层教学楼建筑施工图纸
- 大学6层教学楼建筑施工CAD图纸
- 5层大学教学楼建筑施工CAD图纸
- 大学教学楼给排水CAD施工图纸
- 大学教学楼装修给排水CAD图纸
- 大学音乐系教学楼电气CAD图纸
- 大学教学楼采暖设计CAD施工图纸
- 大学教学楼空调设计全套图纸.
- 大学教学楼建筑全套完整施工CAD图纸
- 大学6层教学楼建筑施工CAD图纸
- 大学教学楼建筑施工图纸cad
全部评论
评论网友评论仅友表达个人看法,并不表明本站同意其观点,不得发布违反法律法规的内容!
