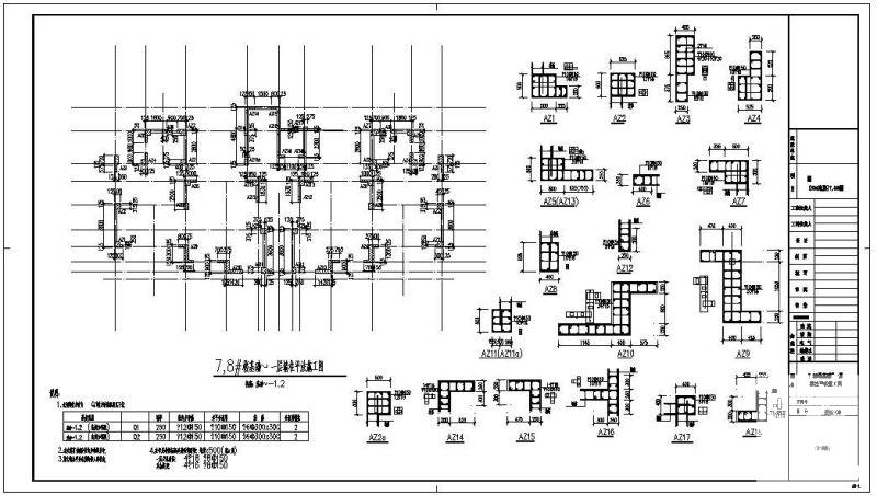
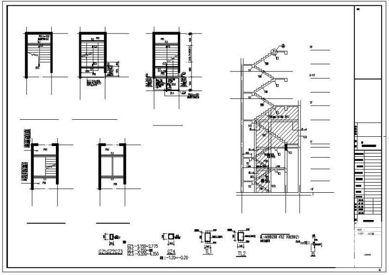
带地下1层剪力墙住宅楼结构设计图纸(柱平法施工图)
- 发布时间:2022-11-16
- 评论次数:0
- 浏览次数:0
- 文件大小:1.15 MB
- 收藏次数:0
- 
								文件名称: 附件-995877998577977876665.rar 附件-995877998577977876665.rar
								相关下载
							
						- 框架结构带地下室会所结构设计CAD图纸(柱平法施工图)
- 28层剪力墙住宅楼结构CAD施工图纸(平法图纸)
- [32层剪力墙住宅楼结构CAD施工图纸(平法图纸)
- 柱帽平法表示构造节点CAD详图纸
- 柱平法节点构造详图纸cad
- 框架柱平法构造详图纸cad
- 28层框架剪力墙结构住宅楼CAD施工图纸(平法)
- 7层带车库异形柱框架住宅楼结构CAD施工图纸(坡屋顶平法表示)
- 高层剪力墙平法CAD施工图纸及柱表详图纸,共8张图纸
- 19层框架住宅楼平法结构设计施工图纸
- 3层框架坡屋顶住宅楼结构CAD施工图纸(柱下独立基础平法)
- 柱、墙平法CAD施工图纸制图纸要求
- 柱平法CAD施工图纸制图纸规则,共5张
- 异形柱框架别墅结构CAD施工图纸(平法)
- 3层异形柱框架品酒店结构CAD施工图纸(坡屋顶平法)
- 两层地下室结构设计cad施工图和墙柱大样图,梁柱墙平法详图
- 6层框架剪力墙结构私人住宅楼结构CAD施工图纸(平法表示)
- 五星级酒店地下车库结构CAD施工图纸(平法表示)
- 剪力墙平法节点构造详施工图纸扶壁柱构造
- 11层加跃层剪力墙公寓结构CAD施工图纸(平法)
全部评论
						
							评论网友评论仅友表达个人看法,并不表明本站同意其观点,不得发布违反法律法规的内容!
						
						
 
	              	 
	              	 
	              	